Купить дом на улице Заречная в Амурской области
Россия, Амурская область, Благовещенский муниципальный округ, село Кантон-Коммуна, Заречная улица, 16
109.2 м²
Площадь дома
10 сот
Площадь участка
Газобетонный блок
Материал постройки
1
Этажей
Описание
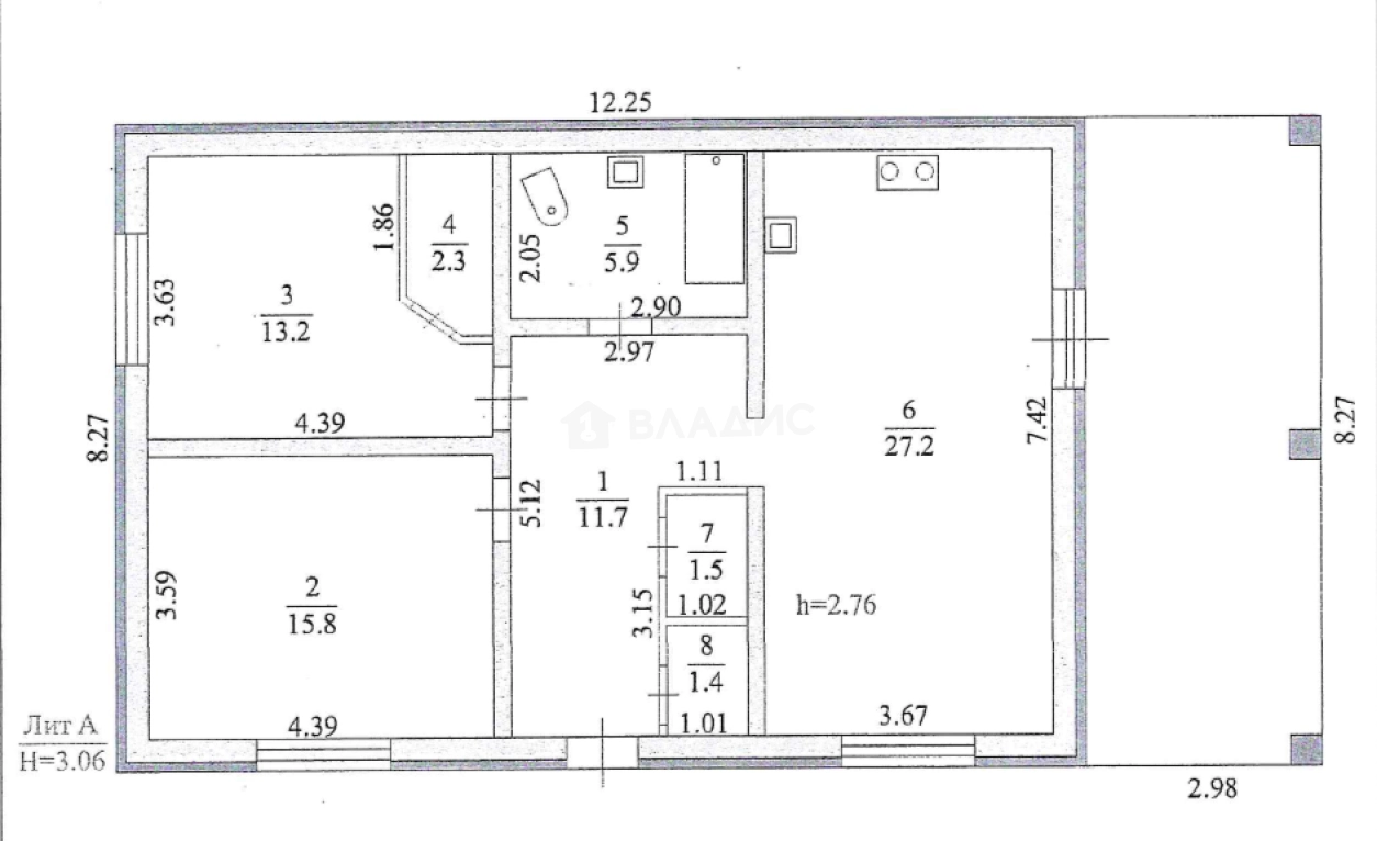
Дом построен в 2023 году из качественных материалов — газобетонных блоков, кровля покрыта металлочерепицей. Высота потолков — 3,06 метра, что создаёт ощущение простора и свободы. Общая площадь дома — 109,2 квадратных метра. В доме три комнаты и две гардеробные комнаты, а также просторная кухня площадью 27,2 квадратных метра.
На участке площадью 10 соток есть всё необходимое для комфортного проживания: водоснабжение от скважины, электричество, своя котельная. Подъезд к участку — грунтовка.
Дом идеально подходит для круглогодичного проживания. Евроремонт, выполненный со вкусом, позволяет сразу заселиться и наслаждаться новым жильём.
Не упустите шанс стать владельцем этого замечательного дома! Позвоните нам прямо сейчас, чтобы узнать больше и записаться на просмотр.
Мы гарантируем безопасную сделку и юридическую поддержку нашим клиентам. Поможем одобрить ипотеку с сниженной ставкой.
О доме
Год постройки
2023
Этажей в доме
1
Общая площадь
109.2 м²
Жилая площадь
58.5 м²
Площадь кухни
27.2 м²
Площадь комнат
15,5+15,8+27,2 м²
Материал постройки
Газобетонный блок
Материал перекрытий
Металлические
Материал кровли
Металлочерепица
Высота потолков
3.06 м
Об участке
Площадь участка
10 сот.
Статус участка
Индивидуальное жилищное строительство
Электричество
Есть
Без благоустройства участка
Есть
Подъезд к участку
Грунтовка
Расположение
Россия, Амурская область, Благовещенский муниципальный округ, село Кантон-Коммуна, Заречная улица, 16
Ипотечный калькулятор
Заполните 1 анкету — получите предложения от десятков банков на специальных условиях
Программа ипотеки
Стоимость жилья, ₽
Первый взнос, ₽
Срок кредита
от 5.75%
Ставка
от 78 010 ₽
Платеж в месяц
Расчёт носит информационный характер и не является публичной офертой
Предложите свою цену
12 400 000 ₽
113 553 ₽/м²






























