Продается 3-комн. квартира, 149.2 м²
Россия, Архангельск, Троицкий проспект, 12
149.2 м²
Общая площадь
90.81 м²
Жилая площадь
17.62 м²
Площадь кухни
4 из 7
Этаж
Описание
О КВАРТИРЕ:
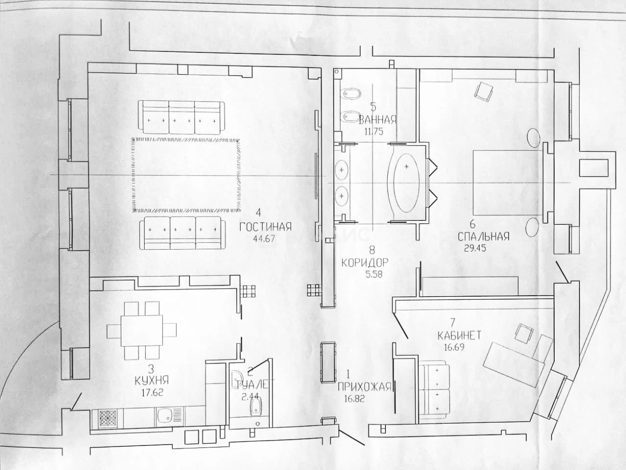
✔️Просторные 149,2 м²* с авторским дизайном.
- Квартира находится в центре дома( не угловая )расположена на 4-ом этаже
- Зал 44,67 м2, с кино-зоной оснащенный акустической системой
- Спальня 29,45 м2 с лоджией. Уникальный интерьер с витражным декором на потолке и на стенах.
- Комната 16,69 м2, которая может быть детской или кабинетом на ваше усмотрение.
- Кухня 17,62 м2 с просторной лоджией.
- Высокие потолки 3 м
✔️Во всех комнатах установлены кондиционеры.
✔️Просторный санузел с ванной, двумя умывальниками, французской сантехникой (Jacob Delafon) и хозяйственной зоной.
✔️Второй гостевой санузел.
✔️Полы из натурального дуба (паркет)
✔️Установлена приточно-вытяжная вентиляционная система
О ДОМЕ:
- Кирпичный дом 2010 г.
- Подземный паркинг ( с возможностью его приобретения, в стоимость квартиры не входит)
- Своя охраняемая закрытая придомовая территория с детской площадкой.
ЛОКАЦИЯ:
Развитая инфраструктура района!
Напротив ТЦ ГрандПлаза, ТЦ Европарк и Кукольный театр.
ЗВОНИТЕ, ЗАПИСЫВАЙТЕСЬ НА ПРОСМОТР
О квартире
Общая площадь
149.2 м²
Жилая площадь
90.81 м²
Площадь кухни
17.62 м²
Площадь комнат
44,67+29,45+16,69 м²
Высота потолков
3 м
Подъезд
2
Этаж
4
Расположение квартиры
не угловая
Окна выходят
На улицу, Во двор
Раздельных санузлов
1
О доме
Год постройки
2010
Этажность
7
Количество подъездов
5
Материал постройки
Кирпичный
Материал перекрытий
Ж/б плиты
Отопление
Центральное
Пассажирских лифтов
1
Парковка
Подземная
Огороженная территория
Да
Расположение
Россия, Архангельск, Троицкий проспект, 12
Ипотечный калькулятор
Заполните 1 анкету — получите предложения от десятков банков на специальных условиях
Программа ипотеки
Стоимость жилья, ₽
Первый взнос, ₽
Срок кредита
от 5.75%
Ставка
от 157 277 ₽
Платеж в месяц
Расчёт носит информационный характер и не является публичной офертой
Предложите свою цену
25 000 000 ₽
167 560 ₽/м²






















