Продается 1-комн. квартира, 42 м²
Россия, Саратовская область, Балаково, Комсомольская улица, 65
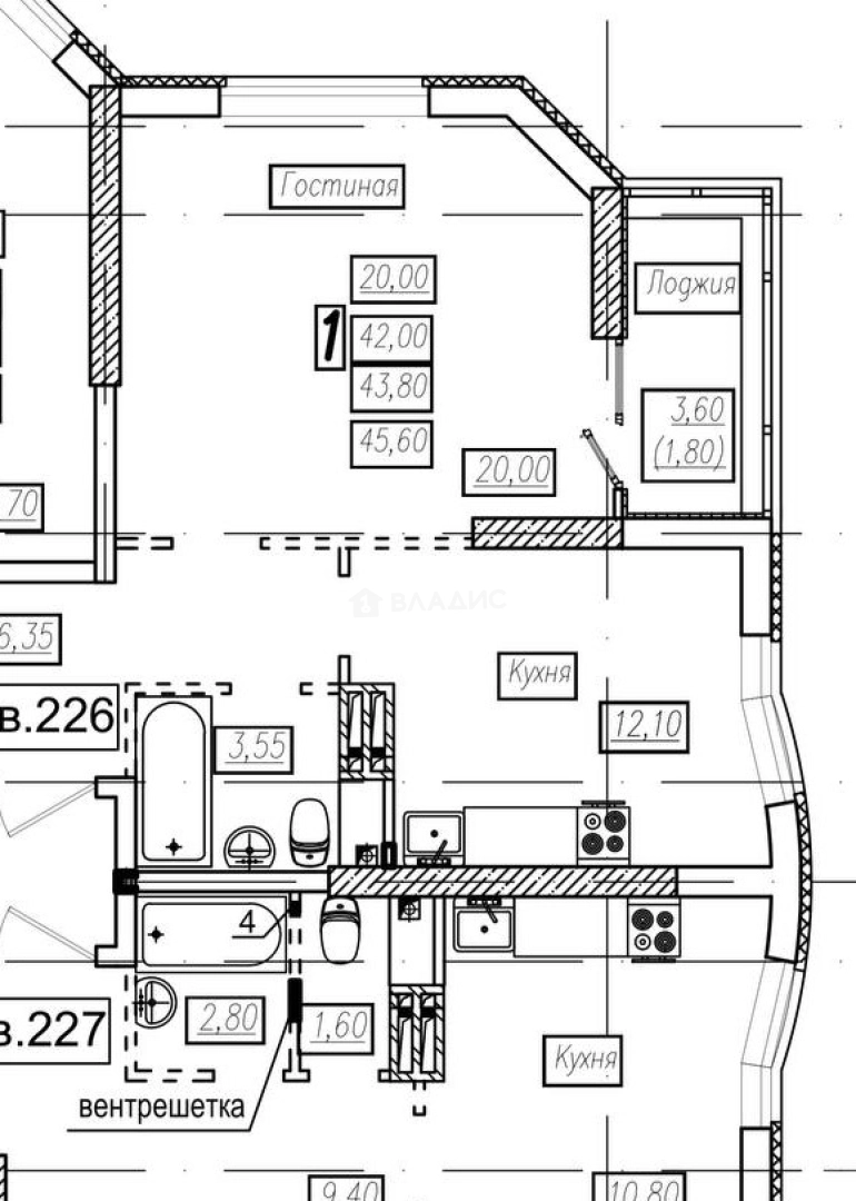
42 м²
Общая площадь
18 м²
Жилая площадь
12 м²
Площадь кухни
10 из 26
Этаж
Описание
Всего в этом живописном месте будет стоять 3 дома!
Свободная планировка квартиры!
Возможно купить как с ремонтом, так и без.
Материал стен -монолит, три лифта, собственная котельная, встроенная система пожарной сигнализации, благоустроенная территория (сквер, детская площадка, шикарные виды на р.Волгу и город,парковка на 500 мест.
ВОЗМОЖНА ипотека под 6 % , сиротский сертификат, военный сертификат, материнский капитал, наличные.
Без скрытых комиссий!
Юридическое сопровождение сделки!
Одобрим вам ипотеку и полностью сопроводим сделку!
О квартире
Общая площадь
42 м²
Жилая площадь
18 м²
Площадь кухни
12 м²
Площадь комнат
18 м²
Этаж
10
Расположение квартиры
угловая
Окна выходят
На улицу
Совмещенных санузлов
1
Ремонт
Без отделки
Лоджия
Есть
О доме
Год постройки
2027
Этажность
26
Материал постройки
Монолитный
Материал перекрытий
Монолитные
Отопление
Своя котельная
Пассажирских лифтов
1
Грузовых лифтов
1
Расположение
Россия, Саратовская область, Балаково, Комсомольская улица, 65
Ипотечный калькулятор
Заполните 1 анкету — получите предложения от десятков банков на специальных условиях
Программа ипотеки
Стоимость жилья, ₽
Первый взнос, ₽
Срок кредита
от 5.75%
Ставка
от 27 216 ₽
Платеж в месяц
Расчёт носит информационный характер и не является публичной офертой
4 326 000 ₽
103 000 ₽/м²




