Продается 3-комн. квартира, 79.6 м²
Россия, Московская область, Балашиха, микрорайон Янтарный, Кольцевая улица, 5
Щелковская
15 мин.
79.6 м²
Общая площадь
53.5 м²
Жилая площадь
10 м²
Площадь кухни
17 из 17
Этаж
Описание
Предлагаем вашему вниманию большую 3-комнатную квартиру с балконом и лоджией, расположенную на 17 этаже 17-этажного дома в современном микрорайоне Янтарный, в городе Балашиха. Этот район известен своей развитой инфраструктурой и отличным транспортным сообщением, всего в нескольких километрах от столицы.
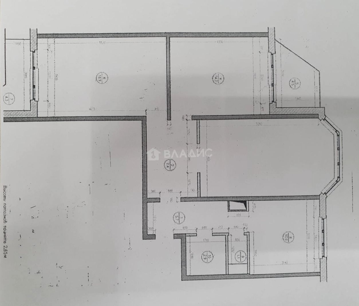
Квартира включает изолированные комнаты (20, 14,7, 18,9 метров), раздельный санузел и широкий коридор, что обеспечивает комфортное проживание. Просторная кухня площадью 10 метров, позволит вам реализовать все кулинарные идеи. Квартира находится в состоянии, позволяющем сделать ремонт по вашему вкусу и предпочтениям.
В микрорайоне Янтарный вы найдете все необходимое для комфортной жизни: множество магазинов, кафе, ресторанов, а также образовательные учреждения — школы и детские сады. Для любителей природы предусмотрены зеленые зоны, парки и скверы, где можно приятно провести время на свежем воздухе.
Отличная транспортная доступность — всего 15 минут на общественном транспорте до метро Щелковская. Удобные маршруты обеспечивают легкий доступ к Москве и другим близлежащим городам.
Полная стоимость в договоре, взрослые собственники, БЕЗ ОБРЕМЕНЕНИЙ!
Гарантируем юридическую и финансовую безопасность сделки. Безопасность сделки обеспечена стандартами работы Гильдии риэлторов Московской области.
Не упустите возможность стать владельцем квартиры, где вы сможете создать уютное и комфортное пространство для жизни! Звоните для организации просмотра!
О квартире
Общая площадь
79.6 м²
Жилая площадь
53.5 м²
Площадь кухни
10 м²
Площадь комнат
19,9+14,7+18,9 м²
Высота потолков
2.65 м
Подъезд
3
Этаж
17
Расположение квартиры
не угловая
Окна выходят
На улицу, Во двор
Раздельных санузлов
1
О доме
Год постройки
2010
Этажность
17
Количество подъездов
4
Материал постройки
Панельный
Материал перекрытий
Ж/б плиты
Отопление
Центральное
Пассажирских лифтов
1
Грузовых лифтов
1
Парковка
Наземная
Расположение
Россия, Московская область, Балашиха, микрорайон Янтарный, Кольцевая улица, 5
Щелковская
15 мин.
Ипотечный калькулятор
Заполните 1 анкету — получите предложения от десятков банков на специальных условиях
Программа ипотеки
Стоимость жилья, ₽
Первый взнос, ₽
Срок кредита
от 5.75%
Ставка
от 72 348 ₽
Платеж в месяц
Расчёт носит информационный характер и не является публичной офертой
Предложите свою цену
11 500 000 ₽
144 472 ₽/м²










































































