Продается 2-комн. квартира, 59.9 м²
Россия, Московская область, Балашиха, Реутовская улица, 11
Первомайская
5 мин.
59.9 м²
Общая площадь
28 м²
Жилая площадь
22.1 м²
Площадь кухни
4 из 15
Этаж
Описание
МЕБЕЛЬ И ТЕХНИКА БОНУСОМ ПОКУПАТЕЛЮ!!!
2 САНУЗЛА!!!
Уважаемый покупатель продаётся двухкомнатная квартира в Балашихе, на Реутовской улице, 11. Это идеальное предложение для тех, кто ищет комфортное жильё в современном доме. Квартира расположена на 4 этаже 15-этажного дома, построенного в 2021 году.
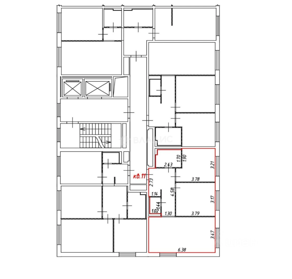
Общая площадь составляет 59,9 кв. м, из которых 28 кв. м — жилая площадь, а 22,1 кв. м — просторная кухня. Высота потолков — 2,66 м, что создаёт ощущение простора и свободы.
В квартире два раздельных санузла, комнаты изолированы.
Не упустите шанс стать владельцем этой уютной квартиры! Позвоните нам прямо сейчас, чтобы узнать больше и записаться на просмотр.
Мы гарантируем безопасную сделку и юридическую поддержку нашим клиентам. Поможем одобрить ипотеку с сниженной ставкой.
О квартире
Общая площадь
59.9 м²
Жилая площадь
28 м²
Площадь кухни
22.1 м²
Высота потолков
2.66 м
Подъезд
2
Этаж
4
Расположение квартиры
не угловая
Окна выходят
На улицу
Раздельных санузлов
1
Совмещенных санузлов
1
О доме
Год постройки
2021
Этажность
15
Количество подъездов
3
Материал постройки
Панельный
Материал перекрытий
Монолитные
Отопление
Центральное
Пассажирских лифтов
1
Грузовых лифтов
2
Парковка
Многоуровневая
Расположение
Россия, Московская область, Балашиха, Реутовская улица, 11
Первомайская
5 мин.
Новогиреево
6 мин.
Щелковская
6 мин.
Новокосино
7 мин.
Измайловская
7 мин.
Ипотечный калькулятор
Заполните 1 анкету — получите предложения от десятков банков на специальных условиях
Программа ипотеки
Стоимость жилья, ₽
Первый взнос, ₽
Срок кредита
от 5.75%
Ставка
от 83 036 ₽
Платеж в месяц
Расчёт носит информационный характер и не является публичной офертой
Предложите свою цену
13 199 000 ₽
220 351 ₽/м²







































