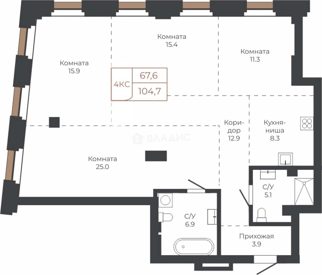
Продается Студия, 103.8 м²
Россия, Алтайский край, Барнаул, площадь Баварина, 8
103.8 м²
Общая площадь
4 из 27
Этаж
Описание
Описания нет
О квартире
Общая площадь
103.8 м²
Этаж
4
Окна выходят
На улицу
О доме
Год постройки
2028
Этажность
27
Материал постройки
Кирпично-монолитный
Расположение
Россия, Алтайский край, Барнаул, площадь Баварина, 8
Ипотечный калькулятор
Заполните 1 анкету — получите предложения от десятков банков на специальных условиях
Программа ипотеки
Стоимость жилья, ₽
Первый взнос, ₽
Срок кредита
от 5.75%
Ставка
от 147 555 ₽
Платеж в месяц
Расчёт носит информационный характер и не является публичной офертой
Похожие объекты
Консультант по новостройкам
23 454 648 ₽
225 960 ₽/м²





