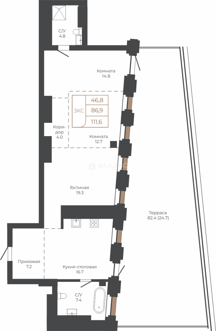
Продается 3-комн. квартира, 111.2 м²
Россия, Алтайский край, Барнаул, площадь Баварина, 8
111.2 м²
Общая площадь
18 из 27
Этаж
Описание
Описания нет
О квартире
Общая площадь
111.2 м²
Этаж
18
Окна выходят
На улицу
О доме
Год постройки
2028
Этажность
27
Материал постройки
Кирпично-монолитный
Расположение
Россия, Алтайский край, Барнаул, площадь Баварина, 8
Ипотечный калькулятор
Заполните 1 анкету — получите предложения от десятков банков на специальных условиях
Программа ипотеки
Стоимость жилья, ₽
Первый взнос, ₽
Срок кредита
от 5.75%
Ставка
от 228 003 ₽
Платеж в месяц
Расчёт носит информационный характер и не является публичной офертой
Консультант по новостройкам
36 242 304 ₽
325 920 ₽/м²




