Купить дом на улице имени Героя Советского Союза А.И. Орлова в Белгороде
Россия, Белгород, улица имени Героя Советского Союза А.И. Орлова
199.2 м²
Площадь дома
13.51 сот
Площадь участка
Газобетонный блок
Материал постройки
2
Этажей
Описание
Продаётся двухэтажный дом площадью 190 кв. м на участке 13,5 соток.
Дом построен в 2020 году из газобетонных блоков, перекрытия — железобетонные плиты. Высота потолков — 2,8 м.
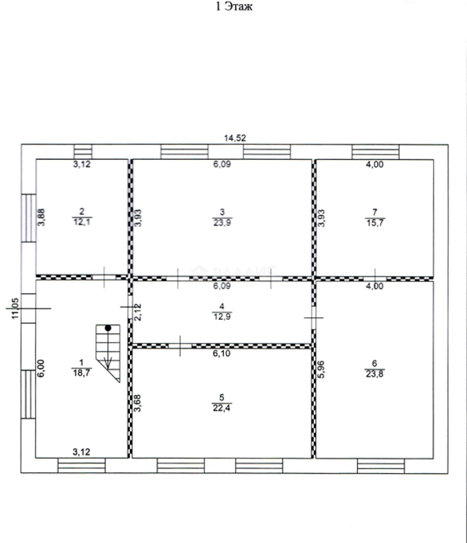
В доме на 1 этаже: большая кухня-гостиная, 3 спальни, совмещённый санузел 12 кв.м, просторная входная группа.
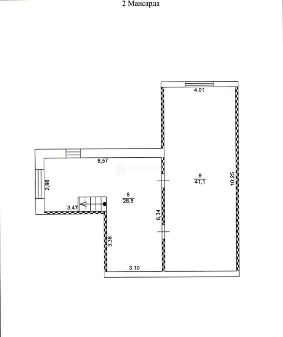
На втором этаже предполагается 2 изолированные комнаты.
Имеется в цокольном этаже подвальное помещение.
Коммуникации подключены, оплачены, заведены в дом — есть электричество, центральное водоснабжение, газ, канализация-септик 3 кольца.
Ремонт на 1 этаже: пол-стяжка, стены отштукатурены по маякам, установлены хорошие стеклопакеты, входная дверь. Остается сделать только финишную отделку на ваш вкус.
Подъезд к участку асфальтированный, что обеспечивает удобный доступ в любое время года.
Участок угловой, идеально ровный, огорожен по периметру, удобное расположение дома на участке
Дом идеально подходит для круглогодичного проживания.
Прямо у дома расположена остановка общественного транспорта. Не далеко от дома расположены магазины: магнит и др. Строится новая школа.
Удобный выезд из массива. До центра города 10 минут на машине
Не упустите шанс стать владельцем этого прекрасного дома!
Один взрослый собственник.
Без долгов и обременений.
Звоните нам прямо сейчас, чтобы узнать больше и записаться на просмотр.
Мы гарантируем безопасную сделку и юридическую поддержку нашим клиентам.
Поможем одобрить ипотеку с сниженной ставкой.
О доме
Год постройки
2020
Этажей в доме
2
Общая площадь
199.2 м²
Жилая площадь
103 м²
Площадь кухни
23.9 м²
Площадь комнат
15,7+22,4+23,8+41,1 м²
Материал постройки
Газобетонный блок
Материал перекрытий
Ж/б плиты
Материал кровли
Шифер
Высота потолков
2.8 м
Об участке
Площадь участка
13.51 сот.
Статус участка
Индивидуальное жилищное строительство
Электричество
Есть
Газ
Есть
Водоснабжение
Есть
Канализация
Есть
Без благоустройства участка
Есть
Подъезд к участку
Асфальт
Расположение
Россия, Белгород, улица имени Героя Советского Союза А.И. Орлова
Ипотечный калькулятор
Заполните 1 анкету — получите предложения от десятков банков на специальных условиях
Программа ипотеки
Стоимость жилья, ₽
Первый взнос, ₽
Срок кредита
от 5.75%
Ставка
от 34 601 ₽
Платеж в месяц
Расчёт носит информационный характер и не является публичной офертой
Предложите свою цену
5 500 000 ₽
27 610 ₽/м²


























