Купить дом на улице Черняховского в Белгороде
Россия, Белгород, улица Черняховского, 37
71.3 м²
Площадь дома
7 сот
Площадь участка
Газобетонный блок
Материал постройки
1
Этажей
Описание
Дом построен из газобетонного блока, что обеспечивает хорошую тепло- и звукоизоляцию. Крыша покрыта в 2023 году экошифером "Римский профиль".
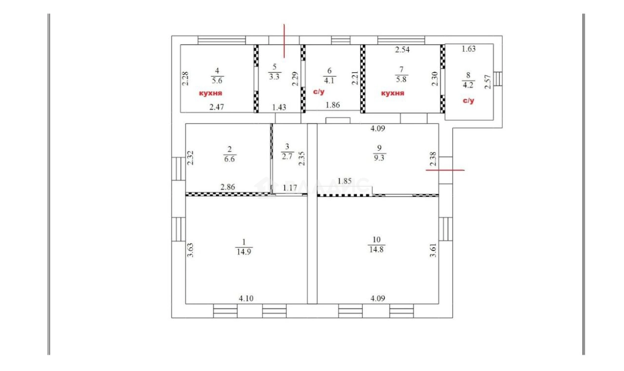
Общая площадь дома составляет 71,3 кв. м, из которых 45,6 кв. м — жилая площадь. Дом, рассчитан на две семьи и разделён на две части. Каждая из них имеет свой вход. Объект с возможностью свободной планировки. Ремонт в состоянии white box (стены и полы под чистовую самоотделку) даёт возможность новым владельцам воплотить свои идеи и создать уютное пространство по своему вкусу.
Электричество в доме:
- Заведен новый силовой кабель в дом;
- Разводка электропроводки по всему дому;
- Распределительный электрошкаф, включает множество модулей различного назначения под каждый прибор, в том числе вывод электричества под теплый пол в хозяйственных помещениях, под электроворота, уличного освещения, котла и бойлера.
Газовое оборудование в доме:
- Возможность установки двух приборов учета газа в одном доме, так как имеется два отвода газовой трубы;
- В 2023 году:
Заменен и проверен газовый счётчик;
Подключен двухконтурный котел Ferroli Vitabel, который находится на гарантии;
Установлена газовая варочная панель MAUNFELD EGHG.32.63CBG.G. и система вентиляции кухни и с/у.
Все радиаторы заменены в 2023 году.
Во всем доме установлены окна ПВХ Lebenbau с гарантией от завода до 2028 года.
Объект подключен к охранной сигнализации с тревожной кнопкой (ЧОП Собратья /2000 р мес.).
На участке площадью 7 соток, есть гараж и хозяйственные постройки, в саду плодовые деревья. На территорию заезд для нескольких машин. Шикарный вид с участка на город. Соседи только с одной стороны.
Этот дом идеально подойдёт для семей, ищущих комфортное жильё в тихом районе с хорошей инфраструктурой. Дом находится в элитном районе города Белгорода - ул. Академическая /Серебряная подкова.
Выезд в город на ул. Костюкова, ул. Железнодорожная, на ул. Ватутина (Новый Мост).
В шаговой доступности рынок Салют, Магнит, высшее учебное заведение - БГТУ им.Шухова, аллея Пушкинская. До остановки общественного транспорта 5 минут ходьбы.
Не упустите шанс стать владельцем этого замечательного дома! Позвоните нам прямо сейчас, чтобы узнать больше и записаться на просмотр.
Мы гарантируем безопасную сделку и юридическую поддержку нашим Клиентам. Поможем одобрить ипотеку с сниженной ставкой.
О доме
Год постройки
1960
Этажей в доме
1
Общая площадь
71.3 м²
Жилая площадь
45.6 м²
Площадь кухни
12.4 м²
Площадь комнат
14,9+14,8+6,6+9,3 м²
Материал постройки
Газобетонный блок
Материал перекрытий
Смешанные
Материал кровли
Шифер
Высота потолков
2.5 м
Об участке
Площадь участка
7 сот.
Статус участка
Индивидуальное жилищное строительство
Электричество
Есть
Газ
Есть
Водоснабжение
Есть
Гараж
Есть
Подъезд к участку
Асфальт
Расположение
Россия, Белгород, улица Черняховского, 37
Ипотечный калькулятор
Заполните 1 анкету — получите предложения от десятков банков на специальных условиях
Программа ипотеки
Стоимость жилья, ₽
Первый взнос, ₽
Срок кредита
от 5.75%
Ставка
от 34 601 ₽
Платеж в месяц
Расчёт носит информационный характер и не является публичной офертой
Предложите свою цену
5 500 000 ₽
77 139 ₽/м²









































































































