Продается 1-комн. квартира, 40.35 м²
Россия, Белгород, улица Разина, 6
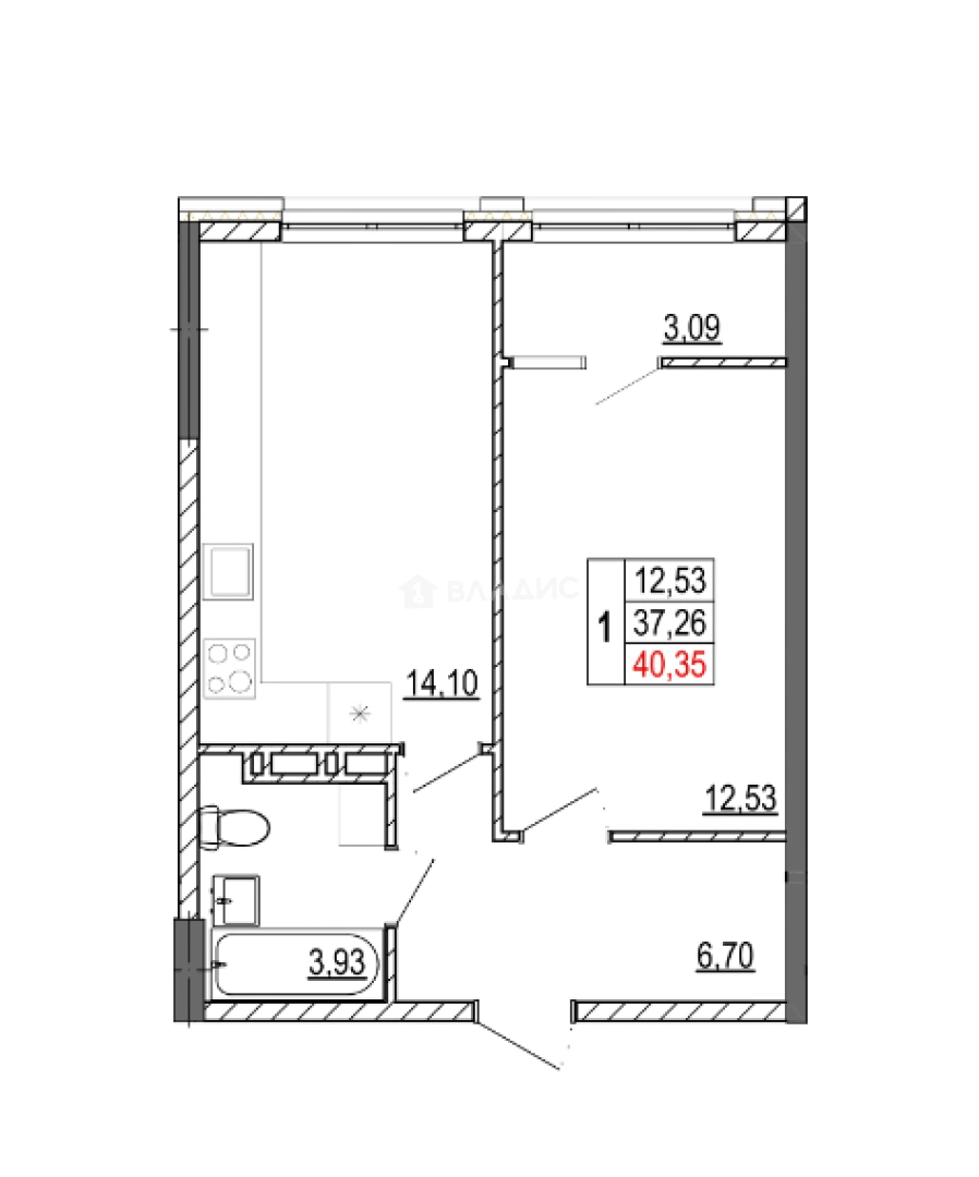
40.35 м²
Общая площадь
12.53 м²
Жилая площадь
14.1 м²
Площадь кухни
8 из 14
Этаж
Описание
Продаётся просторная и светлая однокомнатная квартира площадью 40,35 кв. м на улице Разина, 6.
Квартира расположена на 8 этаже 14-этажного монолитного дома.
ЖК УНИВЕРСИТЕТ(2-я очередь) это ваша тихая гавань посреди бурлящего жизнью центра города
Сдача дома 4 квартал 2028года
В квартирах будет выполнена предчистовая отделка:
-стены отштукатурены;
-пол выровнен;
-потолок подготовлен к финальной отделке;
-электричество разведено, установлены розетки и выключатели;
-установлены стеклопакеты и входная дверь;
-разведены канализационные трубы, отопление и водоснабжение.
В квартире выполнен ремонт white box, что позволяет новому владельцу воплотить свои дизайнерские идеи без дополнительных вложений. Просторная кухня площадью 14,1 кв. м станет местом для семейных ужинов и дружеских посиделок. Наличие лоджии добавляет дополнительное пространство для отдыха.
В пешей доступности расположена вся возможная городская инфраструктура:
-Средняя школа в доступности без пересечения транспортных дорог.
-НИУ БелГУ
-Городская набережная. А еще спортивные площадки и детские зоны отдыха и развлечений.
-Парк победы. Выставочные залы, музеи и Драматический театр.
Дом оборудован подземной парковкой, что обеспечивает удобство и безопасность вашего автомобиля. Окна квартиры выходят во двор, что гарантирует тишину и спокойствие.
Не упустите шанс стать обладателем этой прекрасной квартиры!
Звоните нам прямо сейчас, чтобы узнать больше и записаться на консультацию и бронирование квартиры.
Мы гарантируем безопасную сделку и юридическую поддержку нашим Клиентам.
Поможем одобрить ипотеку с сниженной ставкой.
О квартире
Общая площадь
40.35 м²
Жилая площадь
12.53 м²
Площадь кухни
14.1 м²
Площадь комнат
12,53 м²
Подъезд
1
Этаж
8
Расположение квартиры
угловая
Окна выходят
Во двор
Совмещенных санузлов
1
Ремонт
White box
О доме
Год постройки
2028
Этажность
14
Количество подъездов
1
Материал постройки
Монолитный
Материал перекрытий
Ж/б плиты
Отопление
Центральное
Пассажирских лифтов
1
Грузовых лифтов
1
Парковка
Подземная
Расположение
Россия, Белгород, улица Разина, 6
Ипотечный калькулятор
Заполните 1 анкету — получите предложения от десятков банков на специальных условиях
Программа ипотеки
Стоимость жилья, ₽
Первый взнос, ₽
Срок кредита
от 5.75%
Ставка
от 45 312 ₽
Платеж в месяц
Расчёт носит информационный характер и не является публичной офертой
Похожие объекты
Предложите свою цену
7 202 475 ₽
178 500 ₽/м²
















































































