Купить дом в Белгородской области
Россия, Белгородская область, Корочанский район, Мелиховское сельское поселение, село Дальняя Игуменка
110 м²
Площадь дома
15 сот
Площадь участка
Кирпичный
Материал постройки
1
Этажей
Описание
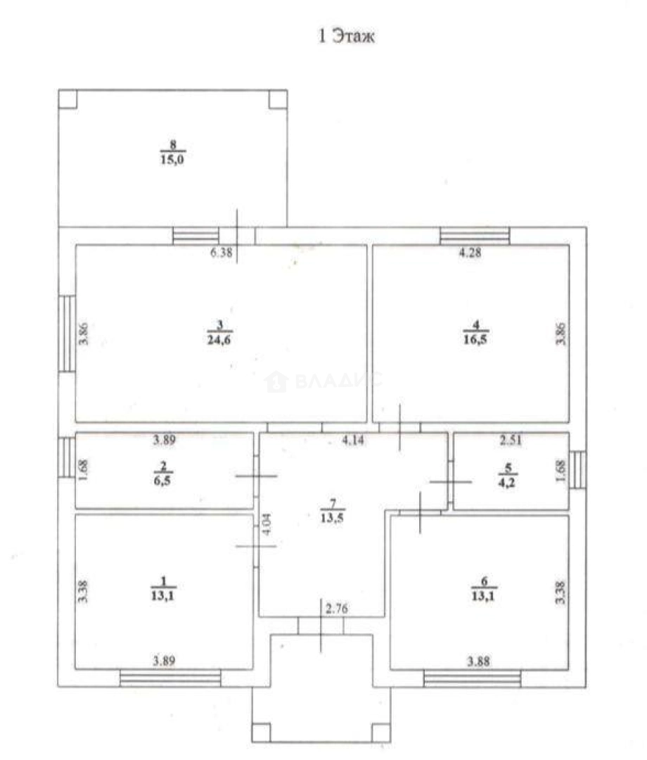
Дом построен в 2025 году и уже сейчас готов предложить вам отличные условия для жизни. Дом выполнен из кирпича, перекрытия — деревянные, высота потолков — 2,8 м. Общая площадь составляет 110- 113 кв. м, жилая — 42,7 кв. м. Дом включает три комнаты (16,5 + 13,1 + 13,1 кв. м), просторную кухню (24,6 кв. м) и два санузла (один раздельный и один совмещённый). Участок площадью 15 соток обеспечен асфальтовым подъездом и всеми необходимыми коммуникациями: электричеством, водоснабжением, газом и канализацией.
Расположение дома привлекает своей близостью к городу (всего 15 км) и развитой инфраструктурой: школы, детские сады, магазины и медицинские учреждения находятся в непосредственной близости.
Ремонт white box позволит новым владельцам воплотить свои дизайнерские идеи и создать уютное пространство по своему вкусу.
Не упустите шанс стать обладателем этого прекрасного дома! Звоните нам прямо сейчас, чтобы узнать больше и записаться на просмотр.
Мы гарантируем безопасную сделку и юридическую поддержку нашим клиентам. Поможем одобрить ипотеку с сниженной ставкой.
О доме
Год постройки
2025
Этажей в доме
1
Общая площадь
110 м²
Жилая площадь
42.7 м²
Площадь кухни
24.6 м²
Площадь комнат
16,5+13,1+13,1 м²
Материал постройки
Кирпичный
Материал перекрытий
Деревянные
Материал кровли
Металлочерепица
Высота потолков
2.8 м
Об участке
Площадь участка
15 сот.
Статус участка
Индивидуальное жилищное строительство
Электричество
Есть
Газ
Есть
Водоснабжение
Есть
Канализация
Есть
Без благоустройства участка
Есть
Подъезд к участку
Асфальт
Расположение
Россия, Белгородская область, Корочанский район, Мелиховское сельское поселение, село Дальняя Игуменка
Ипотечный калькулятор
Заполните 1 анкету — получите предложения от десятков банков на специальных условиях
Программа ипотеки
Стоимость жилья, ₽
Первый взнос, ₽
Срок кредита
от 5.75%
Ставка
от 46 240 ₽
Платеж в месяц
Расчёт носит информационный характер и не является публичной офертой
Похожие объекты












Дом, 100 м², 10 сот.













Дом, 115 м², 15 сот.





Дом, 100 м², 15 сот.














Дом, 122,2 м², 16,0 сот.
Предложите свою цену
7 350 000 ₽
66 818 ₽/м²






















