Купить дом на улице 1-й Центральный переулок в Белгородской области
Россия, Белгородский район, Беломестненское сельское поселение, село Беломестное, 1-й Центральный переулок, 15
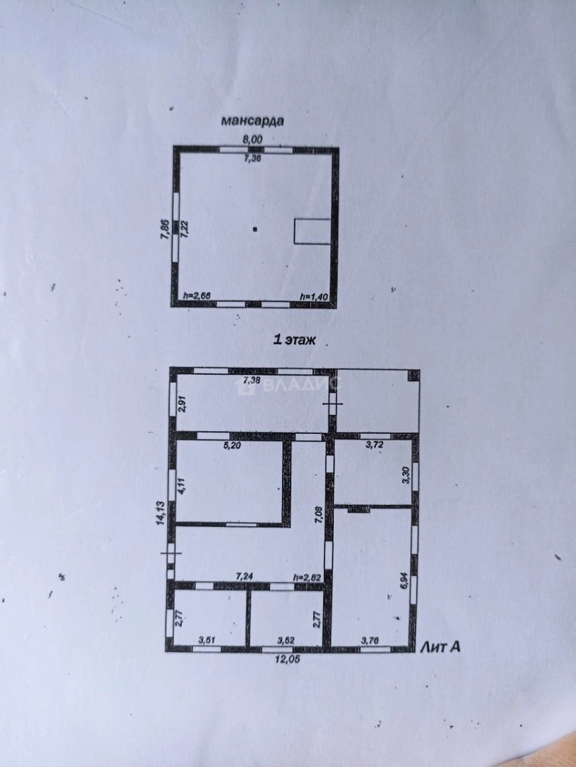
180 м²
Площадь дома
39 сот
Площадь участка
Блочный
Материал постройки
2
Этажей
Описание
Дом строился из качественных материалов, керамзито-бетонные блоки с утеплителем и отделка блоком ЖБК. Перекрытия - железобетонные плиты. Крыша - металлочерепица. Второй этаж мансардный.
В доме есть газ и вода. Установлены два котла, на отопление и на воду. Вода из скважины. Есть дополнительная скважина на полив. Канализационная яма на 4 кольца.
В доме полностью выполнена чистовая отделка, частично уложена плитка на пол (в коридоре, санузле и кухне), натяжные потолки в нескольких комнатах. Установлены современные качественные двери. Установлена лестница на второй этаж из дерева (не установлены балясины). Теплые полы в санузле.
Из дома есть выход на просторную веранду.
На участке плодоносящий сад, виноградник, ухоженный огород. Участок полностью огорожен.
Очень удачное расположение дома. Рядом прекрасный луг, за ним речка! Семейный отдых с рыбалкой и шашлыками в этом месте обеспечен!
Подходит под любой вид оплаты, жилищный сертификат, спецсчет, ипотека, мат. капитал!
В шаговой доступности школа, продуктовые магазины, церковь, почта, остановка общественного транспорта.
Подходит под любой вид оплаты: Курский сертификат, жилищные сертификаты, спецсчет, мат. капитал, ипотека.
Отличное решение для проживания большой семьи!
Звоните! Оперативный показ!
О доме
Год постройки
2018
Этажей в доме
2
Общая площадь
180 м²
Жилая площадь
135 м²
Площадь кухни
26 м²
Площадь комнат
135 м²
Материал постройки
Блочный
Материал перекрытий
Ж/б плиты
Материал кровли
Металлочерепица
Совмещенных санузлов
1
Об участке
Площадь участка
39 сот.
Статус участка
Индивидуальное жилищное строительство
Электричество
Есть
Газ
Есть
Водоснабжение
Есть
Канализация
Есть
Без благоустройства участка
Есть
Подъезд к участку
Щебенка
Расположение
Россия, Белгородский район, Беломестненское сельское поселение, село Беломестное, 1-й Центральный переулок, 15
Ипотечный калькулятор
Заполните 1 анкету — получите предложения от десятков банков на специальных условиях
Программа ипотеки
Стоимость жилья, ₽
Первый взнос, ₽
Срок кредита
от 5.75%
Ставка
от 43 409 ₽
Платеж в месяц
Расчёт носит информационный характер и не является публичной офертой
Предложите свою цену
6 900 000 ₽
38 333 ₽/м²



















































