Купить дом на улице Белгородская в Микрорайоне Стрелецкое-59 в Белгородской области
Россия, Белгородский район, село Стрелецкое, Белгородская улица
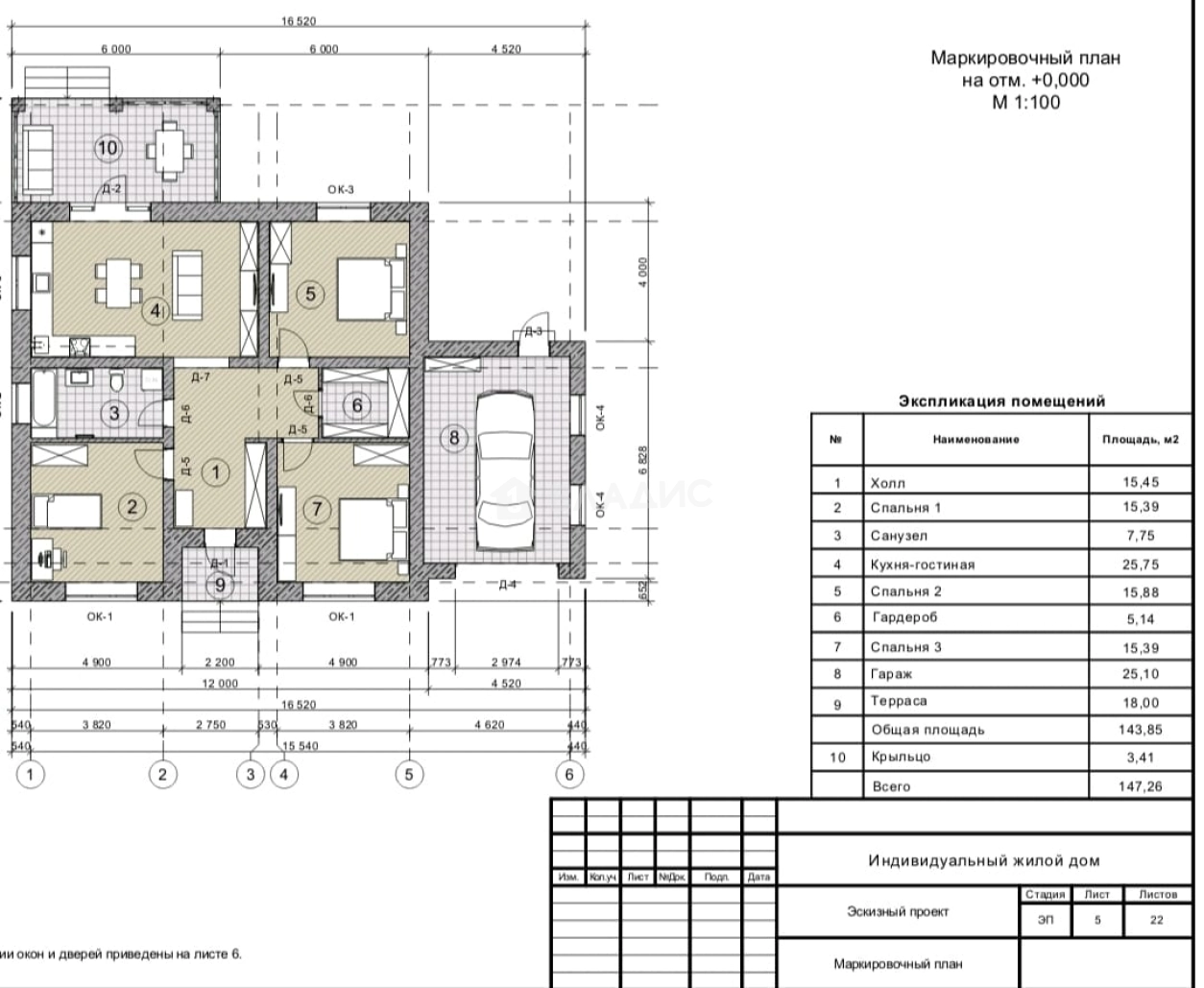
147.3 м²
Площадь дома
12.5 сот
Площадь участка
Блочный
Материал постройки
1
Этажей
Описание
Предлагается к продаже строящийся дом в центре массива Стрелецкое-59. С гаражом. Финальная стадия готовности.
Отличное расположение - в пешей доступности детский сад и начальная школа "Азбука детства" , автобусная остановка, продуктовый и другие торговые точки. Улица застроенная коттеджами, жилая, асфальтированная.
О доме: фундамент ленточный армированный 120х40, стены блоки аэробел , вентзазор плюс облицовочный кирпич , внутренние перегородки-блок СКЦ, пол-монолитная плита, потолок деревянный утеплён эковатой, крыша -коричневая металлочерепица в цвет оконных блоков. Цоколь отделан диким камнем.
Отличная планировка включает три отдельных спальни, кухню-гостиную с выходом на огромную террасу, просторный холл, совмещённую ванную комната , гардеробную. Также к дому пристроен просторный гараж с выходом во двор.
Коммуникации- центральные, в том числе -канализация.
Цена указана за дом с чистовой отделкой.
Можно довести ремонт под ключ.
Ремонт под ключ включает: теплый пол по всему дому, электро и сантехническое оборудование, кроме унитаза и самой ванной. Плитка во всех помещениях, кроме спален (ламинат) , натяжные потолки с точечными светильниками, хорошие входная и межкомнатные двери. Представлено фото готового варианта ремонта.
Участок 12,5 сот. ровный , правильной формы.
О доме
Год постройки
2025
Этажей в доме
1
Общая площадь
147.3 м²
Жилая площадь
46.7 м²
Площадь кухни
26 м²
Площадь комнат
15,4+15,9+15,4 м²
Материал постройки
Блочный
Материал перекрытий
Деревянные
Материал кровли
Металлочерепица
Высота потолков
3 м
Об участке
Площадь участка
12.5 сот.
Статус участка
Индивидуальное жилищное строительство
Электричество
Есть
Газ
Есть
Водоснабжение
Есть
Канализация
Есть
Гараж
Есть
Подъезд к участку
Асфальт
Расположение
Россия, Белгородский район, село Стрелецкое, Белгородская улица
Ипотечный калькулятор
Заполните 1 анкету — получите предложения от десятков банков на специальных условиях
Программа ипотеки
Стоимость жилья, ₽
Первый взнос, ₽
Срок кредита
от 5.75%
Ставка
от 57 878 ₽
Платеж в месяц
Расчёт носит информационный характер и не является публичной офертой
Предложите свою цену
9 200 000 ₽
62 458 ₽/м²




























































