Купить дом в Белгородской области
Россия, Белгородская область, Корочанский район, Шляховское сельское поселение, хутор Объединённый
125 м²
Площадь дома
27 сот
Площадь участка
Газобетонный блок
Материал постройки
1
Этажей
Описание
Подходит под семейную ипотеку 6%
Возможен ремонт под ключ
Ищете дом, где каждый член семьи будет чувствовать себя комфортно и безопасно? Представляем вашему вниманию уютный дом в хуторе Объединённый, Корочанский район, Белгородская область. Это место, где свежий воздух и спокойствие сельской жизни сочетаются с удобствами современного дома.
Основные характеристики:
- Год постройки: 2024
- Материал постройки: газобетонный блок
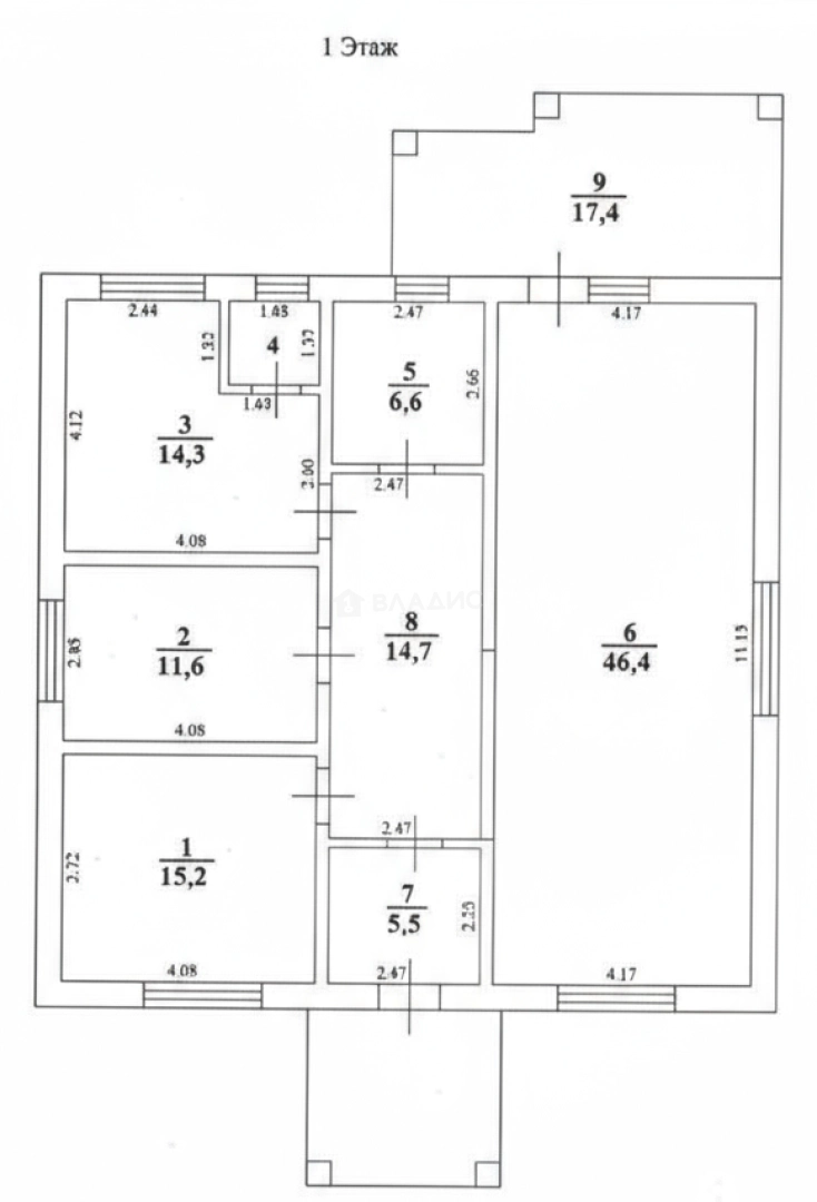
- Общая площадь: 125 кв. м
- Жилая площадь: 40 кв. м
- Площадь кухни-гостиной: 46 кв. м
- Площадь участка: 27 соток
- Количество комнат: 3
- Высота потолков: 2,7 м
- Коммуникации: электричество, водоснабжение (скважина), газ, канализация
- Отопление: индивидуальный котёл
- Подъезд к участку: асфальт
Преимущества:
- Просторная планировка: три комнаты, большая кухня, два санузла (один раздельный, один совмещённый).
- Возможность зонирования: благодаря просторной площади можно создать уютное пространство для всей семьи.
- Экологически чистый район: свежий воздух, рядом озеро, лес, спокойствие и безопасность.
Этот дом идеально подойдёт для семей с детьми, пар без детей и пожилых пар, которые ценят тишину, комфорт и уют. Здесь вы сможете создать свою уникальную атмосферу и наслаждаться жизнью в гармонии с природой.
Не упустите возможность стать владельцем этого замечательного дома! Позвоните нам прямо сейчас, чтобы узнать больше и записаться на просмотр.
Подходит под любой вид расчетов:
ипотека, военная ипотека, материнский капитал, жилищный сертификат, "Курский сертификат", специальный счёт, Постановление 555
Мы гарантируем безопасную сделку и юридическую поддержку нашим Клиентам. Поможем одобрить ипотеку с сниженной ставкой.
О доме
Год постройки
2024
Этажей в доме
1
Общая площадь
125 м²
Жилая площадь
40 м²
Площадь кухни
46 м²
Площадь комнат
15+14+11 м²
Материал постройки
Газобетонный блок
Материал перекрытий
Деревянные
Материал кровли
Металлочерепица
Высота потолков
2.7 м
Об участке
Площадь участка
27 сот.
Статус участка
Индивидуальное жилищное строительство
Электричество
Есть
Газ
Есть
Водоснабжение
Есть
Канализация
Есть
Без благоустройства участка
Есть
Подъезд к участку
Асфальт
Расположение
Россия, Белгородская область, Корочанский район, Шляховское сельское поселение, хутор Объединённый
Ипотечный калькулятор
Заполните 1 анкету — получите предложения от десятков банков на специальных условиях
Программа ипотеки
Стоимость жилья, ₽
Первый взнос, ₽
Срок кредита
от 5.75%
Ставка
от 41 522 ₽
Платеж в месяц
Расчёт носит информационный характер и не является публичной офертой
Предложите свою цену
6 600 000 ₽
52 800 ₽/м²




















































