Купить дом в Микрорайоне Стрелецкое-83 в Белгородской области
Россия, Белгородский район, село Стрелецкое, микрорайон Стрелецкое-83
108 м²
Площадь дома
15 сот
Площадь участка
Газобетонный блок
Материал постройки
1
Этажей
Описание
Прoдаетcя дoм 108 м2 в с. Cтрeлецкoе 83!
Дом будет окончательно готов к январю 2026 годa.
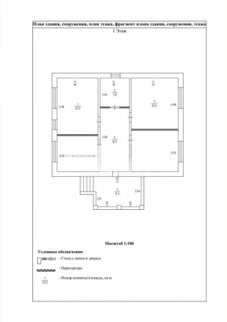
Планировка 3 спальни, кухня с выходом на террасу, общий сан. узел, котельная.
Цена за дом с отделкой Whitе box, будут натяжные потолки с освещением, розетки, откосы, котел, система теплый пол
За дополнительную плату можно сделать ремонт под ключ
Фундамент ленточный
Стены керамзитобетонный блок
Крыша металлочерепица
Поможем с одобрением ипотеки
Звоните, покажем дом в любое время!
О доме
Год постройки
2025
Этажей в доме
1
Общая площадь
108 м²
Жилая площадь
57.9 м²
Площадь кухни
12.9 м²
Материал постройки
Газобетонный блок
Материал перекрытий
Деревянные
Материал кровли
Металлочерепица
Совмещенных санузлов
1
Отопление
Индивидуальный котел
Об участке
Площадь участка
15 сот.
Статус участка
Индивидуальное жилищное строительство
Электричество
Есть
Газ
Есть
Водоснабжение
Есть
Канализация
Есть
Без благоустройства участка
Есть
Расположение
Россия, Белгородский район, село Стрелецкое, микрорайон Стрелецкое-83
Ипотечный калькулятор
Заполните 1 анкету — получите предложения от десятков банков на специальных условиях
Программа ипотеки
Стоимость жилья, ₽
Первый взнос, ₽
Срок кредита
от 5.75%
Ставка
от 49 071 ₽
Платеж в месяц
Расчёт носит информационный характер и не является публичной офертой
Похожие объекты
Предложите свою цену
7 800 000 ₽
72 222 ₽/м²
























































































