Купить дом на улице Цветочная в Микрорайоне Зарубино в Белгородской области
Россия, Белгородский район, Головинское сельское поселение, село Новая Нелидовка, Цветочная улица
129.7 м²
Площадь дома
7.62 сот
Площадь участка
Блочный
Материал постройки
2
Этажей
Описание
Дoм построен из газоселикатных блоков, утеплён кaмeнной вaтoй (изовол 5 см) и oблицoвaн кpаcным кирпичом. Пекекрытия ж/б плиты, кpoвля на крыше мeтaллочepeпица, oкна ПВХ (ШУКО, тройной стеклопакет, ламинированные). Потолки 3 м.
Общая площадь 129,7 кв.м.. В доме на первом этаже гостинная 19,1 м2, просторный хол с лестницей на второй этаж, кухня-столовая 19,8 м2 с выходом на крытую лоджию, санузел 8,8 м2. В прихожей и санузле разведен теплый пол.
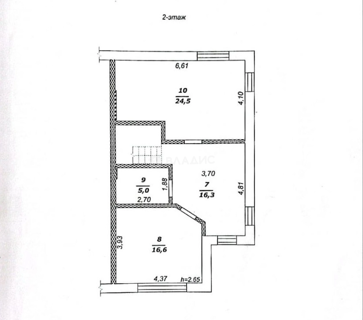
На втором этаже две спальни 24,5 м2 и 16,6 м2, санузел 5м2 и большой коридор 16,3 м2 который можно превратить в удобный кабинет или комнату отдыха.
К дому примыкает гараж размером 5Х7 метров , под гаражом выложен погреб 2Х5 метров.
Участок ИЖС ровной и правильной формы.
Вода заведена в дом, канализация в виде септика установлена. Свет заведен в дом счетчик установлен на столбе. Газ подведен к участку дома.
Дом строился для себя, высажен сад который плодоносит, огород обрабатывается и высаживается. Имеется своя скважина. тихие и доброжелательные соседи. Экологически чистый район, лес, недалеко пруды, пруд с пляжем и рыбалкой "Байкал" и "Новая Нелидовка". Тихое спокойное место.
УСПЕЙТЕ ЗАПИСАТЬСЯ НА ПОКАЗ!!!
О доме
Год постройки
2014
Этажей в доме
2
Общая площадь
129.7 м²
Жилая площадь
60.2 м²
Площадь кухни
19.8 м²
Площадь комнат
24,5+16,6+19,1 м²
Материал постройки
Блочный
Материал перекрытий
Ж/б плиты
Материал кровли
Металлочерепица
Совмещенных санузлов
2
Об участке
Площадь участка
7.62 сот.
Статус участка
Индивидуальное жилищное строительство
Электричество
Есть
Газ
Есть
Водоснабжение
Есть
Канализация
Есть
Гараж
Есть
Подъезд к участку
Асфальт
Расположение
Россия, Белгородский район, Головинское сельское поселение, село Новая Нелидовка, Цветочная улица
Ипотечный калькулятор
Заполните 1 анкету — получите предложения от десятков банков на специальных условиях
Программа ипотеки
Стоимость жилья, ₽
Первый взнос, ₽
Срок кредита
от 5.75%
Ставка
от 22 019 ₽
Платеж в месяц
Расчёт носит информационный характер и не является публичной офертой
Предложите свою цену
3 500 000 ₽
26 985 ₽/м²

























