Купить дом на улице Засечная в Белгородской области
Россия, Белгородский район, Пушкарское сельское поселение, село Пушкарное, Засечная улица
110 м²
Площадь дома
15 сот
Площадь участка
Газобетонный блок
Материал постройки
1
Этажей
Описание
Преимущества:
Выгодная цена: предложение заинтересует тех, кто ищет комфортное жильё по разумной стоимости.
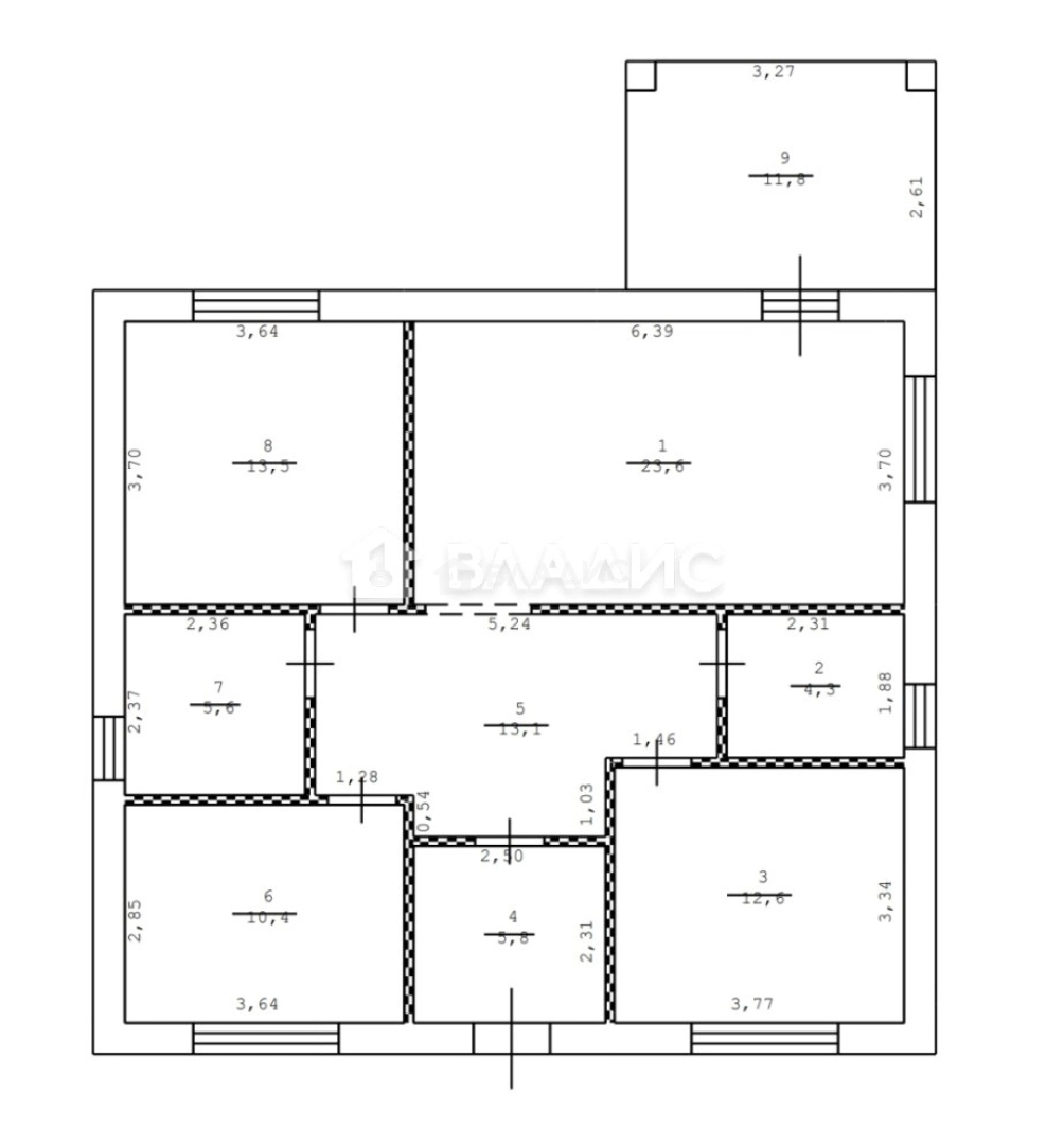
Просторная площадь: общая площадь дома — 110 кв. м, включая три жилые комнаты (13 + 12 + 10 кв. м), кухню (23 кв. м) и два санузла. Дом идеально подойдёт для семей с детьми.
Планировка: продуманная планировка позволит вам эффективно использовать пространство. Высота потолков 2,8 м создаёт ощущение простора и свободы.
Инфраструктура: дом расположен всего в 10 км от города, что обеспечивает лёгкий доступ к образовательным и медицинским учреждениям, магазинам и другим важным объектам.
Основные характеристики:
Год постройки: 2025.
Материал постройки: газобетонный блок.
Коммуникации: электричество, водоснабжение, газ, канализация.
Отопление: индивидуальный котёл.
Ремонт: white box, что позволит вам воплотить любые дизайнерские идеи.
Не упустите возможность стать владельцем уютного дома в живописном месте! Свяжитесь с нами прямо сейчас, чтобы узнать больше и записаться на просмотр.
Подходит под любой вид расчетов:
ипотека, военная ипотека, материнский капитал, жилищный сертификат, "Курский сертификат", специальный счёт, Постановление 555
Мы гарантируем безопасную сделку и юридическую поддержку нашим клиентам. Поможем одобрить ипотеку с сниженной ставкой.
О доме
Год постройки
2025
Этажей в доме
1
Общая площадь
110 м²
Жилая площадь
35 м²
Площадь кухни
23 м²
Площадь комнат
13+12+10 м²
Материал постройки
Газобетонный блок
Материал перекрытий
Деревянные
Материал кровли
Мягкая черепица
Высота потолков
2.8 м
Об участке
Площадь участка
15 сот.
Статус участка
Индивидуальное жилищное строительство
Электричество
Есть
Газ
Есть
Водоснабжение
Есть
Канализация
Есть
Без благоустройства участка
Есть
Расположение
Россия, Белгородский район, Пушкарское сельское поселение, село Пушкарное, Засечная улица
Ипотечный калькулятор
Заполните 1 анкету — получите предложения от десятков банков на специальных условиях
Программа ипотеки
Стоимость жилья, ₽
Первый взнос, ₽
Срок кредита
от 5.75%
Ставка
от 40 578 ₽
Платеж в месяц
Расчёт носит информационный характер и не является публичной офертой
Предложите свою цену
6 450 000 ₽
58 636 ₽/м²
















































