Купить дом на улице Благодарная в Бердске
Россия, Новосибирская область, Бердск, Благодарная улица
256 м²
Площадь дома
10 сот
Площадь участка
Бревно
Материал постройки
1
Этажей
Описание
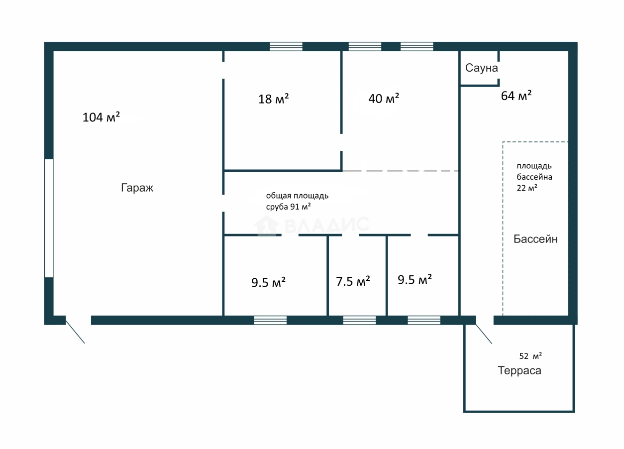
Продаётся уютный одноэтажный дом площадью 256 кв. м на участке в 10 соток по адресу: Благодарная улица, Бердск, Новосибирская область. Дом построен в 2018 году из бревна, что гарантирует его экологичность и долговечность. Высота потолков в 2,8 м создаёт ощущение простора.
На участке есть всё для комфортной жизни: гараж, бассейн, баня (все под крышей). Гараж - 100кв.м., бассейн - 22кв.м., комнаты по 9,5 кв.м., кухня-гостиная 40 кв.м., комната - 18кв.м. Водоснабжение осуществляется из скважины с очистными сооружениями, а коммуникации включают электричество, газ, канализацию и водоснабжение. Дом подходит для круглогодичного проживания, может отапливаться газом и альтернативное отопление - электричество.
Чистовая отделка позволяет сразу заселиться или воплотить свои дизайнерские идеи. Потолок сделан, пол - стяжка, полностью разведена э/проводка по дому, к сан.узлам на кухне и ванной подведена сантехническая разводка труб. Вам остается сделать только пол.
Отличное расположение с асфальтированным подъездом и близостью к городской инфраструктуре делает этот дом идеальным выбором для тех, кто хочет наслаждаться природой, не отказываясь от удобств городской жизни.
Звоните нам прямо сейчас, чтобы узнать больше и записаться на просмотр!
Мы гарантируем безопасную сделку и юридическую поддержку нашим клиентам. Поможем одобрить ипотеку с сниженной ставкой.
О доме
Год постройки
2018
Этажей в доме
1
Общая площадь
256 м²
Жилая площадь
44 м²
Площадь кухни
30 м²
Площадь комнат
25+9,5+9,5 м²
Материал постройки
Бревно
Материал перекрытий
Деревянные
Материал кровли
Профнастил
Высота потолков
2.8 м
Об участке
Площадь участка
10 сот.
Статус участка
Личное подсобное хозяйство
Электричество
Есть
Газ
Есть
Водоснабжение
Есть
Канализация
Есть
Гараж
Есть
Подъезд к участку
Асфальт
Расположение
Россия, Новосибирская область, Бердск, Благодарная улица
Ипотечный калькулятор
Заполните 1 анкету — получите предложения от десятков банков на специальных условиях
Программа ипотеки
Стоимость жилья, ₽
Первый взнос, ₽
Срок кредита
от 5.75%
Ставка
от 47 183 ₽
Платеж в месяц
Расчёт носит информационный характер и не является публичной офертой
Предложите свою цену
7 500 000 ₽
29 297 ₽/м²













































