Продается 2-комн. квартира, 39.2 м²
Россия, Алтайский край, Бийск, Стахановская улица, 2/4
39.2 м²
Общая площадь
22.2 м²
Жилая площадь
7.1 м²
Площадь кухни
1 из 5
Этаж
Описание
Почему стоит выбрать эту квартиру?
Расположение. Дом находится в спокойном районе, но при этом недалеко от центра города. Рядом есть всё необходимое для комфортной жизни: магазины, школы, детские сады, аптеки и спортивные клубы. Удобная транспортная доступность.
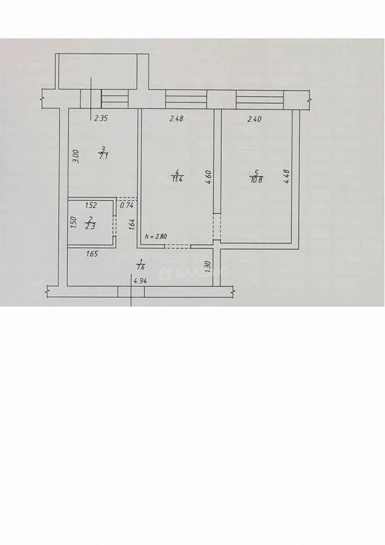
Площадь. Общая площадь квартиры — 39,2 м², из которых 22,2 м² — жилая площадь. Высота потолков — 2,8 м. Есть лоджия.
Ремонт. Косметический ремонт позволит вам сразу заселиться и жить без дополнительных вложений.
Цена. Выгодная цена на рынке недвижимости.
Позвоните нам прямо сейчас, чтобы узнать больше о квартире и договориться о просмотре! Мы гарантируем безопасную сделку и юридическую поддержку нашим Клиентам. Поможем одобрить ипотеку с сниженной ставкой.
О квартире
Общая площадь
39.2 м²
Жилая площадь
22.2 м²
Площадь кухни
7.1 м²
Площадь комнат
11,4+10,8 м²
Высота потолков
2.8 м
Подъезд
1
Этаж
1
Расположение квартиры
не угловая
Окна выходят
На улицу
Совмещенных санузлов
1
О доме
Год постройки
2010
Этажность
5
Материал постройки
Кирпичный
Материал перекрытий
Ж/б плиты
Отопление
Центральное
Расположение
Россия, Алтайский край, Бийск, Стахановская улица, 2/4
Ипотечный калькулятор
Заполните 1 анкету — получите предложения от десятков банков на специальных условиях
Программа ипотеки
Стоимость жилья, ₽
Первый взнос, ₽
Срок кредита
от 5.75%
Ставка
от 25 794 ₽
Платеж в месяц
Расчёт носит информационный характер и не является публичной офертой
Предложите свою цену
4 100 000 ₽
104 592 ₽/м²



































































































