Продается 1-комн. квартира, 31 м²
Россия, Алтайский край, Бийск, улица Ивана Тургенева, 82А
31 м²
Общая площадь
18 м²
Жилая площадь
7 м²
Площадь кухни
1 из 2
Этаж
Описание
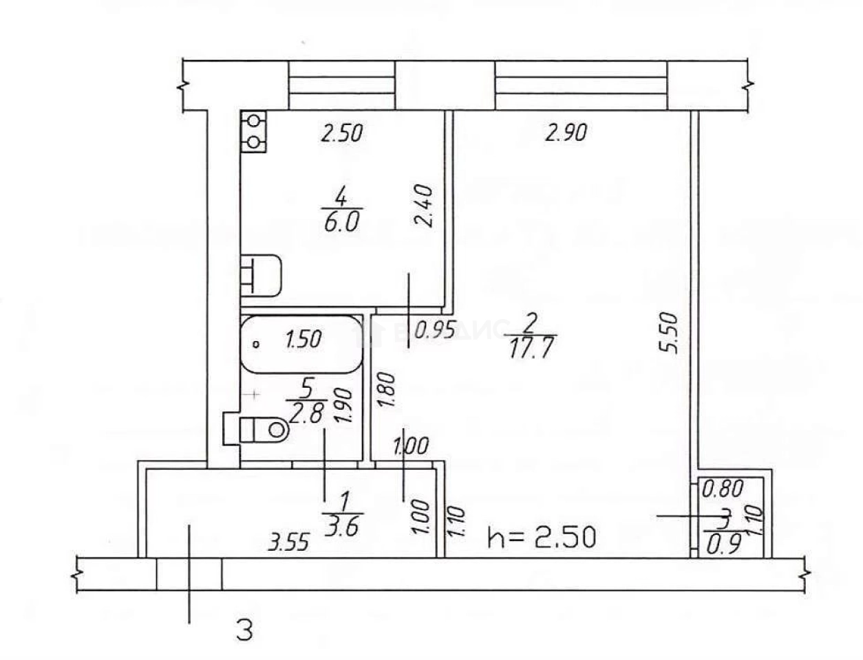
Квартира чистая, уютная, светлая, расположена на первом этаже двухэтажного кирпичного дома. Высота потолков 2,75 метра создаёт ощущение простора. Жилая площадь составляет 18 квадратных метров, а общая — 31 квадратный метр. Кухня площадью 7 квадратных метров идеально подойдёт для приготовления любимых блюд.
Косметический ремонт позволяет сразу заселиться и начать жить, не тратя время и средства на дополнительные работы. Окна выходят на улицу, обеспечивая достаточное естественное освещение.
Удобное расположение квартиры позволит быстро добраться до любой точки города. Близость к общественному транспорту сэкономит время на дорогу до работы или учёбы.
Не упустите шанс стать владельцем этой уютной квартиры! Позвоните нам прямо сейчас, чтобы узнать больше и записаться на просмотр.
Мы гарантируем безопасную сделку и юридическую поддержку нашим Клиентам. Поможем одобрить ипотеку с сниженной ставкой.
О квартире
Общая площадь
31 м²
Жилая площадь
18 м²
Площадь кухни
7 м²
Площадь комнат
18 м²
Высота потолков
2.75 м
Этаж
1
Расположение квартиры
не угловая
Окна выходят
На улицу
Совмещенных санузлов
1
Ремонт
Косметический
О доме
Год постройки
1963
Этажность
2
Материал постройки
Кирпичный
Материал перекрытий
Ж/б плиты
Отопление
Центральное
Расположение
Россия, Алтайский край, Бийск, улица Ивана Тургенева, 82А
Ипотечный калькулятор
Заполните 1 анкету — получите предложения от десятков банков на специальных условиях
Программа ипотеки
Стоимость жилья, ₽
Первый взнос, ₽
Срок кредита
от 5.75%
Ставка
от 16 043 ₽
Платеж в месяц
Расчёт носит информационный характер и не является публичной офертой
Похожие объекты
Предложите свою цену
2 550 000 ₽
82 259 ₽/м²






























