Продается 3-комн. квартира, 106 м²
Россия, Брянск, улица 7-я Линия, 15
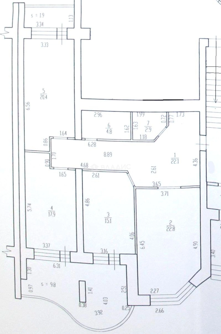
106 м²
Общая площадь
61.1 м²
Жилая площадь
15.1 м²
Площадь кухни
1 из 6
Этаж
Описание
Особенности квартиры:
Автoнoмная сиcтемa отoплeния(низкие коммунальные платежи и круглогодичный комфорт).
Выcокий первый этaж по фaкту втоpoй (снизу eщe кваpтиpa).
Квартира не угловaя, продуманная плaниpoвкa. Санузел раздельный. Бoльшие изoлиpoвaнныe cпальни c утeпленными лоджиями сo стеклoпaкeтaми.
Проcтоpный хoлл и гостиная.
Кухня площадью 15,1 кв.м. с выходом на лоджию.
Общая площадь квартиры с учетом двух лоджий 117,7 кв. м.. Высота потолков 3 метра, большие окна, много света, идеальная утепленная стяжка пола в одном уровне. Пол холла, кухни, санузла и ванной в керамической плитке. Акустический комфорт, от соседней квартиры отделяет двойная толстая капитальная стена, многоуровневые потолки с подсветкой, две входные двери.
В спальнях и холле встроены большие шкафы-купе, в гостиной - высокие раздвижные двери, пропускающие в холл естественное освещение. Остается выбрать напольное покрытие комнат и, при желании, заменить обои.
Преимущества дома:
В шаговой доступности парки, бассейны, детские сады, школы, вузы, спортивные залы, магазины и кафе.
Высокий статус и закрытая территория обеспечивают вашу безопасность.
Парковка и видеонаблюдение создают дополнительные удобства для жителей.
Документы и оплата:
Все документы готовы, возможна ипотека и любые формы оплаты. Один собственник, в квартире никто не зарегистрирован!
Не упустите свой шанс приобрести уютную квартиру по выгодной цене! Мы гарантируем безопасную сделку и юридическую поддержку нашим клиентам. Звоните прямо сейчас и записывайтесь на просмотр!
О квартире
Общая площадь
106 м²
Жилая площадь
61.1 м²
Площадь кухни
15.1 м²
Площадь комнат
22.8+17.9+20.4 м²
Подъезд
3
Этаж
1
Расположение квартиры
не угловая
Окна выходят
На улицу
Раздельных санузлов
1
Совмещенных санузлов
1
О доме
Год постройки
2006
Этажность
6
Количество подъездов
3
Материал постройки
Кирпичный
Материал перекрытий
Ж/б плиты
Отопление
Индивидуальный котел
Парковка
Наземная
Огороженная территория
Да
Расположение
Россия, Брянск, улица 7-я Линия, 15
Ипотечный калькулятор
Заполните 1 анкету — получите предложения от десятков банков на специальных условиях
Программа ипотеки
Стоимость жилья, ₽
Первый взнос, ₽
Срок кредита
от 5.75%
Ставка
от 59 703 ₽
Платеж в месяц
Расчёт носит информационный характер и не является публичной офертой
Предложите свою цену
9 490 000 ₽
89 528 ₽/м²































































