Продается 3-комн. квартира, 64.4 м²
Россия, Брянск, улица Ромашина, 34к1
64.4 м²
Общая площадь
42.7 м²
Жилая площадь
8 м²
Площадь кухни
7 из 10
Этаж
Описание
Адрес: Россия, Брянск, улица Ромашина, 34к1. (ост.Автовокзал)
Почему стоит рассмотреть этот вариант?
Расположение:
- Дом построен в 1989 году, находится на седьмом этаже десятиэтажного панельного дома в самом центре Советского района г.Брянска.
- Окна выходят как во двор так и на улицу (распашонка), а квартира расположена таким удобным образом, что обеспечивает хорошую освещённость.
- Возле дома наземная парковка, что всегда удобно для автовладельцев.
- На площадке тамбур на 2 квартиры, соседи рядом не проживают.
- Выход на улицу сквозной на две стороны дома.
Площадь и планировка:
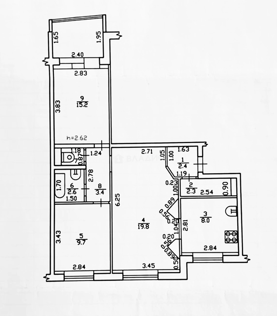
- Общая площадь квартиры составляет 64,4 кв. м, из которых жилая площадь — 42,7 кв. м.
- Площадь комнат: 9,7 + 13,2 + 19,8 кв. м.
- Есть лоджия, где обустроено уютное место для работы или учебы.
- Комнаты изолированы, что важно для комфортного проживания семьи.
Квартира:
- Квартира частично мебелированная, есть кухонный гарнитур с качественной техникой, кровати, столы, шкафы (все как на фото).
- В квартире выполнен косметический ремонт (заезжай и живи).
- Сантехника в исправном состоянии.
- Есть счетчики на воду.
- Большая гардеробная.
- Сплит система.
- Освещение выполнено максимально зонировано.
Инфраструктура:
- Развитая инфраструктура района: автовокзал, кафе "Чикен-пицца", школа, детский сад, магазины, рынок, бассейн и многое другое — всё в шаговой доступности.
- Хорошая транспортная доступность, благодаря которой можно быстро добраться до любой точки города.
Не упустите возможность стать обладателем уютной квартиры, где каждый член вашей семьи будет чувствовать себя комфортно и безопасно. 🏠
Позвоните нам прямо сейчас, чтобы узнать больше и записаться на просмотр! 💼
Мы гарантируем безопасную сделку и юридическую поддержку нашим клиентам. Поможем одобрить ипотеку с сниженной ставкой.
О квартире
Общая площадь
64.4 м²
Жилая площадь
42.7 м²
Площадь кухни
8 м²
Площадь комнат
9,7+13,2+19,8 м²
Высота потолков
2.62 м
Подъезд
4
Этаж
7
Расположение квартиры
не угловая
Окна выходят
На улицу
Раздельных санузлов
1
О доме
Год постройки
1989
Этажность
10
Количество подъездов
4
Материал постройки
Панельный
Материал перекрытий
Ж/б плиты
Отопление
Центральное
Пассажирских лифтов
1
Парковка
Наземная
Расположение
Россия, Брянск, улица Ромашина, 34к1
Ипотечный калькулятор
Заполните 1 анкету — получите предложения от десятков банков на специальных условиях
Программа ипотеки
Стоимость жилья, ₽
Первый взнос, ₽
Срок кредита
от 5.75%
Ставка
от 35 860 ₽
Платеж в месяц
Расчёт носит информационный характер и не является публичной офертой
Предложите свою цену
5 700 000 ₽
88 509 ₽/м²









































































