Купить дом на улице Молодёжный переулок в Брянской области
Россия, Брянская область, Дубровский район, Рековичское сельское поселение, деревня Зимницкая Слобода, Молодёжный переулок, 1
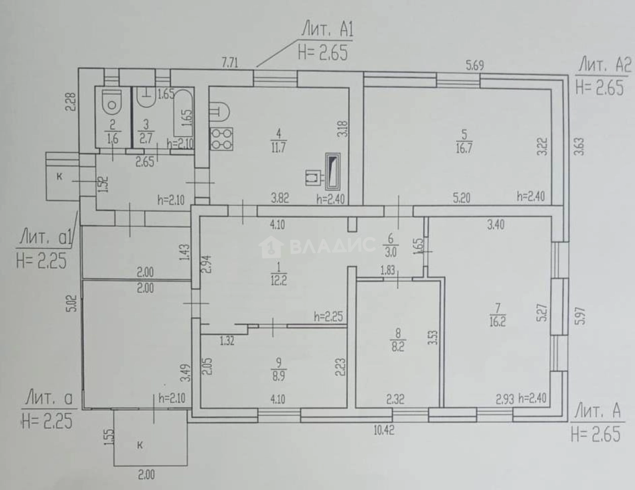
81.6 м²
Площадь дома
15 сот
Площадь участка
Кирпичный
Материал постройки
1
Этажей
Описание
- Площадь дома 81,6 м², жилая 50 м²
- Дом обеспечен всеми коммуникациями: вода, газ, электричество, местная канализация. Сделан косметический ремонт, все окна ПВХ, крыша перекрыта металлочерепицей.
- В доме четыре изолированные комнаты, кухня 11,7 м², раздельный санузел.
- Участок ровный и сухой, прямоугольной формы, обработан, установлена теплица, имеются плодово-ягодные насаждения. Сделано межевание.
- Во дворе имеется, баня, сарай.
- Подъезд к дому круглогодичный, асфальтированный. Территория огорожена забором из металлопрофиля .
- В шаговой доступности школа, детский сад, аптека, магазины.
- На все интересующие вопросы отвечу по телефону.
Показ по предварительной договоренности. ЗВОНИТЕ!
О доме
Год постройки
1986
Этажей в доме
1
Общая площадь
81.6 м²
Жилая площадь
50 м²
Площадь кухни
11.7 м²
Площадь комнат
16,7+16,2+8,2+8,9 м²
Материал постройки
Кирпичный
Материал перекрытий
Деревянные
Материал кровли
Металлочерепица
Раздельных санузлов
1
Об участке
Площадь участка
15 сот.
Статус участка
Индивидуальное жилищное строительство
Электричество
Есть
Газ
Есть
Водоснабжение
Есть
Канализация
Есть
Баня
Есть
Подъезд к участку
Асфальт
Расположение
Россия, Брянская область, Дубровский район, Рековичское сельское поселение, деревня Зимницкая Слобода, Молодёжный переулок, 1
Ипотечный калькулятор
Заполните 1 анкету — получите предложения от десятков банков на специальных условиях
Программа ипотеки
Стоимость жилья, ₽
Первый взнос, ₽
Срок кредита
от 5.75%
Ставка
от 27 052 ₽
Платеж в месяц
Расчёт носит информационный характер и не является публичной офертой
Предложите свою цену
4 300 000 ₽
52 696 ₽/м²


















