Купить дом на улице Советская в Чулыме
Россия, Новосибирская область, Чулым, Советская улица, 71
96.2 м²
Площадь дома
9.11 сот
Площадь участка
Брус
Материал постройки
1
Этажей
Описание
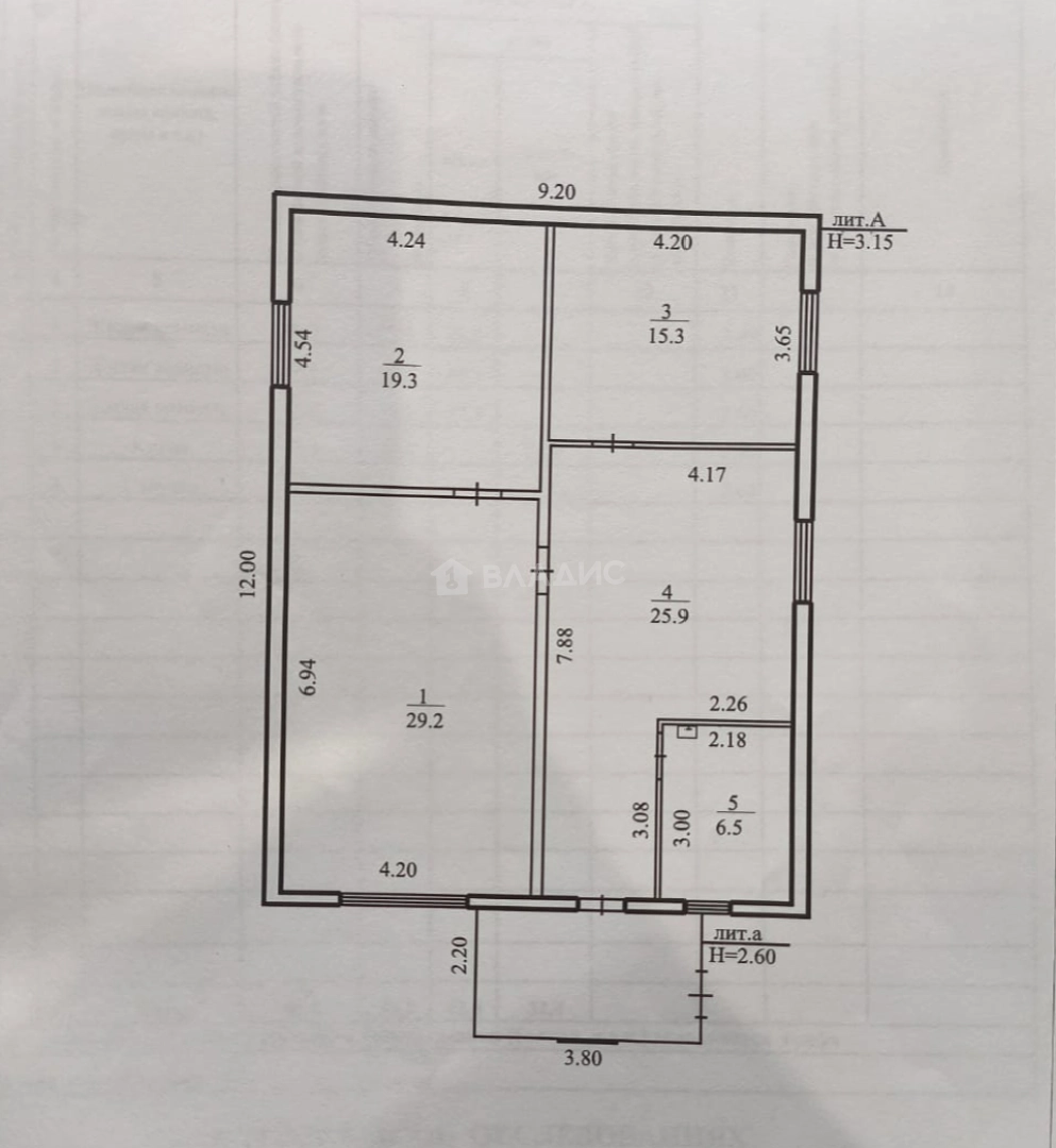
Дом построен в 2012 году из бруса, что гарантирует его прочность и долговечность. Общая площадь — 96,2 кв. м, жилая — 63,8 кв. м. В доме три комнаты, просторная кухня площадью 25,6 кв. м и один совмещённый санузел. Высота потолков — 2,6 м.
Участок площадью 9 соток благоустроен, имеется гараж. Подъезд к участку асфальтированный. Дом подключён ко всем необходимым коммуникациям: электричество, водоснабжение, газ, канализация.
Дом идеально подходит для круглогодичного проживания. Это отличный выбор для тех, кто ценит уют и спокойствие. Не упустите свой шанс стать владельцем этого замечательного дома!
Мы гарантируем безопасную сделку и юридическую поддержку нашим клиентам.
О доме
Год постройки
2012
Этажей в доме
1
Общая площадь
96.2 м²
Жилая площадь
63.8 м²
Площадь кухни
25.6 м²
Площадь комнат
29,2+19,3+15,3 м²
Материал постройки
Брус
Материал перекрытий
Деревянные
Материал кровли
Профнастил
Высота потолков
2.6 м
Об участке
Площадь участка
9.11 сот.
Статус участка
Личное подсобное хозяйство
Электричество
Есть
Газ
Есть
Водоснабжение
Есть
Канализация
Есть
Гараж
Есть
Подъезд к участку
Асфальт
Расположение
Россия, Новосибирская область, Чулым, Советская улица, 71
Ипотечный калькулятор
Заполните 1 анкету — получите предложения от десятков банков на специальных условиях
Программа ипотеки
Стоимость жилья, ₽
Первый взнос, ₽
Срок кредита
от 5.75%
Ставка
от 45 296 ₽
Платеж в месяц
Расчёт носит информационный характер и не является публичной офертой
Предложите свою цену
7 200 000 ₽
74 844 ₽/м²




































