2-комн. квартира · 40.3 pм² · 10/31 эт.
Россия, Москва, Дмитровское шоссе, 75/77
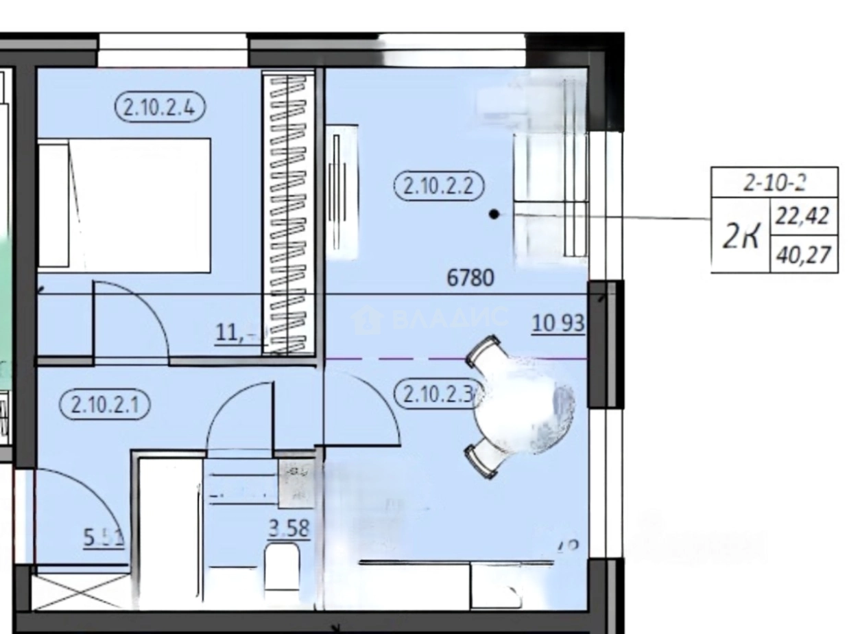
40.27 м²
Общая площадь
14 м²
Жилая площадь
19.7 м²
Площадь кухни
10 из 31
Этаж
Описание
Квартира расположена на 10-м этаже 31-этажного монолитного дома, построенного в 2024 году. Общая площадь составляет 40,3 кв. м. Благодаря угловому расположению и окнам, выходящим на улицу, в квартире всегда будет светло и просторно.
Огороженная территория комплекса обеспечивает безопасность и приватность для жителей. Центральное отопление гарантирует комфорт в холодное время года.
Это предложение особенно актуально для молодых специалистов и семей, которые ценят современные удобства и хотят жить в развитом районе с хорошей инфраструктурой.
Не упустите шанс стать владельцем квартиры в одном из самых перспективных районов Москвы. Позвоните нам прямо сейчас, чтобы узнать больше и записаться на просмотр.
Мы гарантируем безопасную сделку и юридическую поддержку нашим клиентам. Поможем одобрить ипотеку с сниженной ставкой.
О квартире
Общая площадь
40.27 м²
Жилая площадь
14 м²
Площадь кухни
19.7 м²
Этаж
10
Расположение квартиры
угловая
Окна выходят
На улицу
Совмещенных санузлов
1
Ремонт
Без отделки
Европланировка
Да
О доме
Год постройки
2024
Этажность
31
Материал постройки
Монолитный
Материал перекрытий
Монолитные
Отопление
Центральное
Огороженная территория
Да
Расположение
Россия, Москва, Дмитровское шоссе, 75/77
Ипотечный калькулятор
Заполните 1 анкету — получите предложения от десятков банков на специальных условиях
Программа ипотеки
Стоимость жилья, ₽
Первый взнос, ₽
Срок кредита
от 5.75%
Ставка
от 133 994 ₽
Платеж в месяц
Расчёт носит информационный характер и не является публичной офертой
Похожие объекты
Малачиханова Эльмира
Специалист по недвижимости
Предложите свою цену
21 299 000 ₽
528 905 ₽/м²



















































