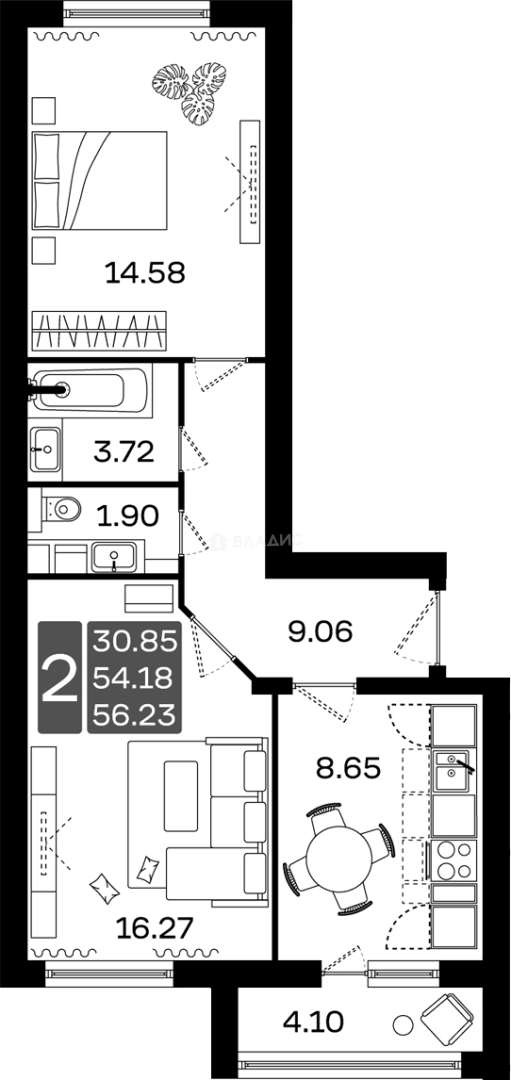
Продается 2-комн. квартира, 54.25 м²
Россия, Московская область, городской округ Домодедово, село Домодедово, улица Современников, 4
Силикатная
14 мин.
54.25 м²
Общая площадь
30.85 м²
Жилая площадь
8.65 м²
Площадь кухни
13 из 17
Этаж
Описание
В ЖК «Домодедово Парк» предложено множество планировочных решений классического типа. Сдаются они без стен в виде свободной планировки и высотой потолков 2,72 метра.
На территории жилого комплекса «Домодедово Парк» предусмотрены торговый центр, детские и спортивные площадки, 3 детских сада и 2 школы. На первых этажах расположены коммерческие помещения. Для владельцев автомобилей предусмотрена стоянка.
ЖК «Домодедово Парк» находится в Домодедово, где работают все необходимые объекты инфраструктуры: магазины, отделения почты и банков, медицинские учреждения. Выезд на МКАД находится в 20 минутах транспортом, метро «Домодедовская» — в 30 минутах. Международный аэропорт «Домодедово» находится в 50 минутах транспортом, а Ж/Д платформа «Ленинская» в 20 минутах пешком.
О квартире
Общая площадь
54.25 м²
Жилая площадь
30.85 м²
Площадь кухни
8.65 м²
Площадь комнат
14.58+16.27 м²
Высота потолков
2.7199999999999998 м
Подъезд
1
Этаж
13
Окна выходят
На улицу
О доме
Год постройки
2023
Этажность
17
Количество подъездов
5
Материал постройки
Монолитный
Материал перекрытий
Ж/б плиты
Отопление
Центральное
Пассажирских лифтов
1
Грузовых лифтов
1
Парковка
Наземная
Расположение
Россия, Московская область, городской округ Домодедово, село Домодедово, улица Современников, 4
Силикатная
14 мин.
Щербинка
15 мин.
Подольск
15 мин.
Остафьево
18 мин.
Битца
19 мин.
Бутово
19 мин.
Улица Скобелевская
19 мин.
Ипотечный калькулятор
Заполните 1 анкету — получите предложения от десятков банков на специальных условиях
Программа ипотеки
Стоимость жилья, ₽
Первый взнос, ₽
Срок кредита
от 5.75%
Ставка
от 55 962 ₽
Платеж в месяц
Расчёт носит информационный характер и не является публичной офертой
Похожие объекты

















2-комн. квартира, 54,3 м², 9/17 эт.
Силикатная
14 мин.

















2-комн. квартира, 55,5 м², 10/17 эт.
Силикатная
14 мин.

















2-комн. квартира, 54,3 м², 10/17 эт.
Силикатная
14 мин.

















2-комн. квартира, 54,3 м², 10/17 эт.
Силикатная
14 мин.
Консультант по новостройкам
8 895 400 ₽
163 971 ₽/м²


















