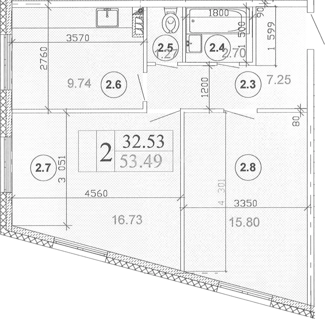
Продается 2-комн. квартира, 53.49 м²
Россия, Ленинградская область, Гатчина, Центр, жилой комплекс Мьюзик Парк, 4
53.49 м²
Общая площадь
32.53 м²
Жилая площадь
9.74 м²
Площадь кухни
2 из 3
Этаж
Описание
В жилом комплексе предложено множество планировочных решений: в наличии квартиры, как классического типа, так и европланировки. Сдаются они без отделки и высотой потолков 2.8 метра. Из окон верхних этажей открываются прекрасные виды на Приоратский парк.
Внутридворовое пространство ЖК предполагает благоустроенную территорию с уютными дорожками, местами для отдыха. Во дворе выполнен ландшафтный дизайн установлены детская и спортивная площадки, территория проекта является закрытой. Для владельцев автомобилей предусмотрена стоянка.
Жилой комплекс находится в Гатчинском районе. В пешей доступности находятся детские сады, школы, магазины, медицинские учреждения, банки, 2 парка: Приоратский и Дворцовый. До метро «Московская» — 40 минут транспортом.
О квартире
Общая площадь
53.49 м²
Жилая площадь
32.53 м²
Площадь кухни
9.74 м²
Площадь комнат
16.73+15.8 м²
Высота потолков
2.8 м
Этаж
2
Окна выходят
На улицу
О доме
Год постройки
2021
Этажность
3
Материал постройки
Панельный
Парковка
Наземная
Расположение
Россия, Ленинградская область, Гатчина, Центр, жилой комплекс Мьюзик Парк, 4
Ипотечный калькулятор
Заполните 1 анкету — получите предложения от десятков банков на специальных условиях
Программа ипотеки
Стоимость жилья, ₽
Первый взнос, ₽
Срок кредита
от 5.75%
Ставка
от 57 513 ₽
Платеж в месяц
Расчёт носит информационный характер и не является публичной офертой
Похожие объекты







2-комн. квартира, 48,4 м², 1/3 эт.







2-комн. квартира, 57,4 м², 2/3 эт.







2-комн. квартира, 54,5 м², 1/3 эт.







2-комн. квартира, 57,4 м², 3/3 эт.
Консультант по новостройкам
9 141 948 ₽
170 910 ₽/м²








