Продается 1-комн. квартира, 35 м²
Россия, Ленинградская область, Гатчина, улица Куприна, 26
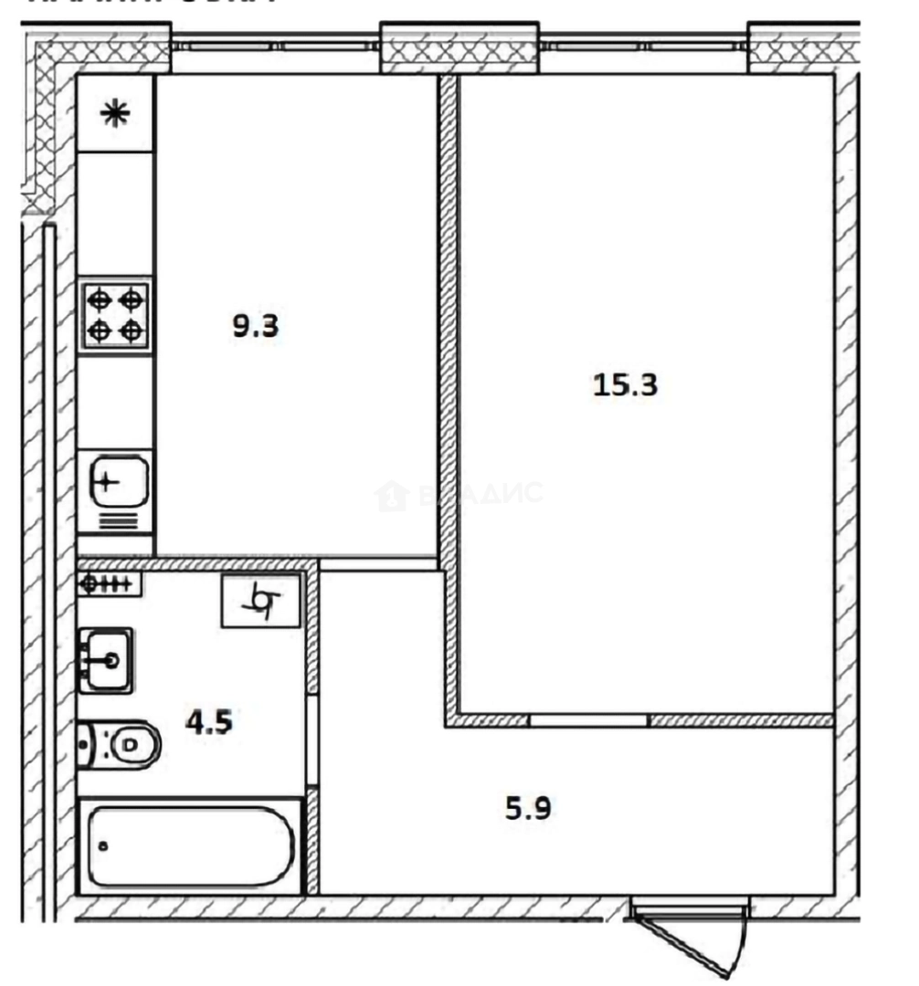
35 м²
Общая площадь
15.3 м²
Жилая площадь
9.3 м²
Площадь кухни
1 из 4
Этаж
Описание
В проекте представлены квартиры с 1–3 комнатами и европланировками. Высота потолков — 2,7 м. Установлены окна с повышенной шумоизоляцией. Жилье передается без отделки, но с базовой подготовкой: выполнена стяжка пола, проведена электрическая разводка с установкой розеток и выключателей, вмонтированы радиаторы отопления, а также счетчики воды и электроэнергии.
Придомовая территория комплекса благоустроена и озеленена: обустроены детская и спортивная площадки с резиновым покрытием для комфорта и безопасности. Также спроектированы зоны отдыха и пешеходный бульвар. Для владельцев авто предусмотрена открытая стоянка, в подъездах оборудованы помещения для хранения велосипедов и колясочные. Организована система раздельного сбора мусора.
Проект расположен в историческом районе Мариенбург города Гатчина. В пределах 10–20 минут пешком находятся школа, детский сад и поликлиника, а также Дворцовый парк, Орлова Роща, озеро Белое и экологический маршрут. До КАД можно добраться за 45 минут транспортом, а до центра Санкт-Петербурга — за 1 час 10 минут транспортом.
О квартире
Общая площадь
35 м²
Жилая площадь
15.3 м²
Площадь кухни
9.3 м²
Площадь комнат
15.3 м²
Высота потолков
2.7 м
Этаж
1
Окна выходят
На улицу
О доме
Год постройки
2025
Этажность
4
Материал постройки
Панельный
Расположение
Россия, Ленинградская область, Гатчина, улица Куприна, 26
Ипотечный калькулятор
Заполните 1 анкету — получите предложения от десятков банков на специальных условиях
Программа ипотеки
Стоимость жилья, ₽
Первый взнос, ₽
Срок кредита
от 5.75%
Ставка
от 27 603 ₽
Платеж в месяц
Расчёт носит информационный характер и не является публичной офертой
Похожие объекты



1-комн. квартира, 37,5 м², 4/4 эт.



1-комн. квартира, 35,4 м², 4/4 эт.



1-комн. квартира, 34,9 м², 4/4 эт.



1-комн. квартира, 34,6 м², 4/4 эт.
Консультант по новостройкам
4 387 500 ₽
125 358 ₽/м²




