Продается Студия, 32.7 м²
Россия, Ленинградская область, Гатчина, микрорайон Въезд
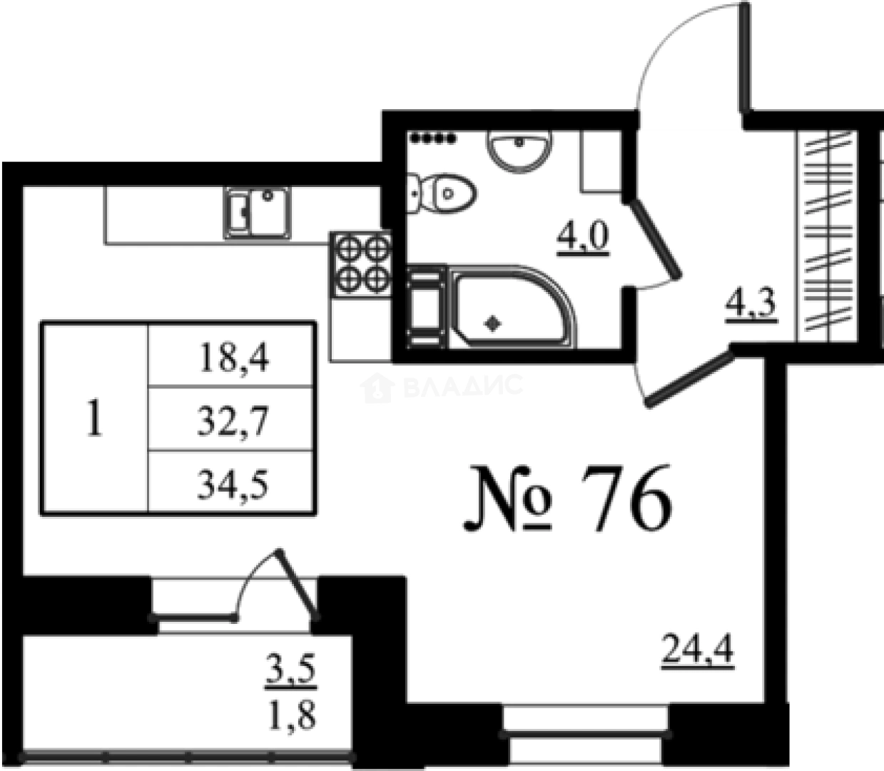
32.7 м²
Общая площадь
24.4 м²
Жилая площадь
7 из 8
Этаж
Описание
В жилом комплексе предложено множество планировочных решений: от студий до 4-х комнатных квартир, как классического типа, так и европланировки. Сдаются они без отделки, с увеличенными окнами, французскими балконами и лоджиями с витражным остеклением. Высота потолков в квартирах достигает 3,26 метра.
Двор проекта закрыт от посторонних машин, ведется видеонаблюдение, выполнен индивидуальный ландшафтный дизайн. Внутридворовая территория имеет собственную рекреационную зону — бульвар, композиционно и функционально связанный с зеленой зоной парка «Орлова роща». Все пространство двора отведено под благоустройство и озеленение, пешеходные дорожки и аллеи, детские игровые и спортивные площадки, зоны отдыха для взрослых. Для владельцев автомобилей предусмотрена стоянка.
Проект расположен в Гатчинском районе. В шаговой доступности работают магазины, школы, детские сады, аптеки, торговый комплекс. Поблизости расположен Дворцовый парк, площадь которого составляет более 143 гектаров. До метро «Купчино» можно доехать за 30 минут на автомобиле.
О квартире
Общая площадь
32.7 м²
Жилая площадь
24.4 м²
Площадь комнат
24.4 м²
Высота потолков
2.8 м
Этаж
7
Окна выходят
На улицу
О доме
Год постройки
2025
Этажность
8
Материал постройки
Кирпично-монолитный
Материал перекрытий
Монолитные
Отопление
Центральное
Парковка
Наземная
Расположение
Россия, Ленинградская область, Гатчина, микрорайон Въезд
Ипотечный калькулятор
Заполните 1 анкету — получите предложения от десятков банков на специальных условиях
Программа ипотеки
Стоимость жилья, ₽
Первый взнос, ₽
Срок кредита
от 5.75%
Ставка
от 36 029 ₽
Платеж в месяц
Расчёт носит информационный характер и не является публичной офертой
Похожие объекты






Студия, 32,7 м², 6/8 эт.






Студия, 32,7 м², 4/8 эт.
Консультант по новостройкам
5 727 000 ₽
175 138 ₽/м²
























