Продается 2-комн. квартира, 54.03 м²
Россия, Московская область, Химки, улица Генерала Дьяконова, 15
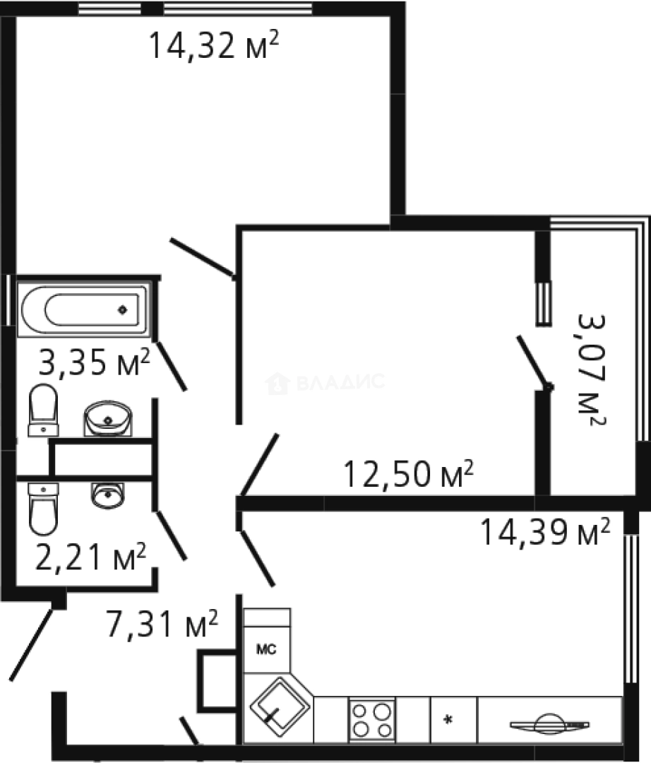
54.03 м²
Общая площадь
26.82 м²
Жилая площадь
14.39 м²
Площадь кухни
6 из 8
Этаж
Описание
В жилом комплексе предложен широкий выбор планировочных решений от студий до 3-комнатных квартир площадью от 28,4 до 78,8 метров, в том числе планировки европейского формата. Есть квартиры с двумя санузлами, просторными гардеробными, нишами, специально оборудованными местами для стиральных машин в ванных комнатах. Во всех квартирах предусмотрены увеличенные оконные проемы и высокие потолки от не менее 2,85 метра. Квартиры сдаются без отделки и внутренних перегородок.
Придомовая территория благоустроена согласно концепции «двор без машин». Во дворах размещены безопасные детские площадки от мировых брендов с максимальным использованием эко-материалов, зоны отдыха на шезлонгах, спортивные площадки и зоны воркаут, велопарковки и парковки для самокатов. Для детей в комплексе создано единое учебное пространство, включающее в себя начальную школу и детский сад на 276 мест. Для непринужденного общения, проведения мастер-классов, семейных и спортивных праздников в квартале предусмотрен соседский клуб. Жителям комплекса доступна благоустроенная пешеходная набережная с оригинальным мощением, стильными и экологичными малыми архитектурными формами и уличной мебелью.
Жилой комплекс находится в подмосковном городе Химки, на живописном берегу реки Клязьма. По соседству с ним находятся квартал Трахонеево и Церковь Успения Пресвятой Богородицы — объект культурного наследия городского округа Химки. В 2 километрах находится аэропорт Шереметьево, поблизости проходят Ленинградское и Дмитровское шоссе, а также трасса М-11. Транспортная развязка позволяет добраться до МКАД на машине за 15–30 минут в зависимости от маршрута.
О квартире
Общая площадь
54.03 м²
Жилая площадь
26.82 м²
Площадь кухни
14.39 м²
Площадь комнат
14.32+12.5 м²
Высота потолков
2.85 м
Подъезд
1
Этаж
6
Окна выходят
На улицу
О доме
Год постройки
2023
Этажность
8
Количество подъездов
3
Материал постройки
Кирпично-монолитный
Материал перекрытий
Монолитные
Отопление
Центральное
Грузовых лифтов
1
Парковка
Многоуровневая
Расположение
Россия, Московская область, Химки, улица Генерала Дьяконова, 15
Ипотечный калькулятор
Заполните 1 анкету — получите предложения от десятков банков на специальных условиях
Программа ипотеки
Стоимость жилья, ₽
Первый взнос, ₽
Срок кредита
от 5.75%
Ставка
от 75 101 ₽
Платеж в месяц
Расчёт носит информационный характер и не является публичной офертой
Похожие объекты


















3-комн. квартира, 59,0 м², 7/8 эт.


















2-комн. квартира, 61,7 м², 7/8 эт.


















3-комн. квартира, 60,4 м², 7/8 эт.


















2-комн. квартира, 54,0 м², 8/8 эт.
Консультант по новостройкам
11 937 601 ₽
220 944 ₽/м²



















