Продается 2-комн. квартира, 56.94 м²
Россия, Московская область, Химки, жилой комплекс Планерный квартал
Планерная
4 мин.
56.94 м²
Общая площадь
31.77 м²
Жилая площадь
11.44 м²
Площадь кухни
2 из 17
Этаж
Описание
В проекте «Планерный Квартал» предложено множество планировочных решений: в наличии квартиры, как классического типа, так и европланировки. Сдаются они без отделки и высотой потолков от 2,72 метров.
На территории комплекса «Планерный Квартал» расположен детский сад и центр внешкольного творчества. Комплекс имеет физкультурно-оздоровительный центр с возможностью посещения без выхода на улицу. В проекте предусмотрен высокий уровень безопасности – территория закрыта от посторонних; круглосуточная охрана; видеонаблюдение с возможностью подключения электронных устройств жителей; бесконтактная навигация с автоматическим распознавать собственника. Для владельцев автомобилей спроектирован подземный паркинг.
Комплекс «Планерный Квартал» расположен в живописном месте в экологически чистом районе. Рядом с комплексом расположен заповедный массив площадью 240 га с прогулочными дорожками и зонами для пикников. До центра Москвы можно доехать за 20 минут. В районе богатая инфраструктура — детские и спортивные площадки, детский сад, школа, лицей, фитнес-центр, кафе, торговый центр, медицинские центры и учреждения, магазины. До метро «Планерная» 10 минут транспортом.
О квартире
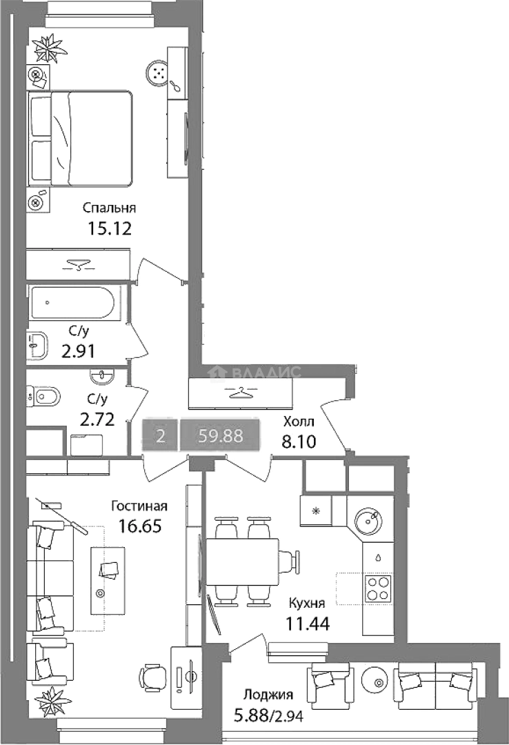
Общая площадь
56.94 м²
Жилая площадь
31.77 м²
Площадь кухни
11.44 м²
Площадь комнат
16.65+15.12 м²
Высота потолков
3 м
Подъезд
2
Этаж
2
Окна выходят
На улицу
О доме
Год постройки
2025
Этажность
17
Количество подъездов
3
Материал постройки
Кирпично-монолитный
Материал перекрытий
Ж/б плиты
Отопление
Центральное
Пассажирских лифтов
1
Грузовых лифтов
1
Парковка
Подземная
Расположение
Россия, Московская область, Химки, жилой комплекс Планерный квартал
Планерная
4 мин.
Сходненская
6 мин.
Беломорская
6 мин.
Ховрино
7 мин.
Пятницкое шоссе
7 мин.
Ипотечный калькулятор
Заполните 1 анкету — получите предложения от десятков банков на специальных условиях
Программа ипотеки
Стоимость жилья, ₽
Первый взнос, ₽
Срок кредита
от 5.75%
Ставка
от 110 075 ₽
Платеж в месяц
Расчёт носит информационный характер и не является публичной офертой
Похожие объекты







2-комн. квартира, 54,6 м², 8/17 эт.
Планерная
4 мин.







2-комн. квартира, 56,8 м², 16/17 эт.
Планерная
4 мин.







2-комн. квартира, 59,9 м², 2/17 эт.
Планерная
4 мин.







2-комн. квартира, 56,7 м², 8/9 эт.
Планерная
4 мин.
Консультант по новостройкам
17 496 952 ₽
307 288 ₽/м²







