Продается 3-комн. квартира, 74.62 м²
Россия, Московская область, Сергиево-Посадский городской округ, Хотьково
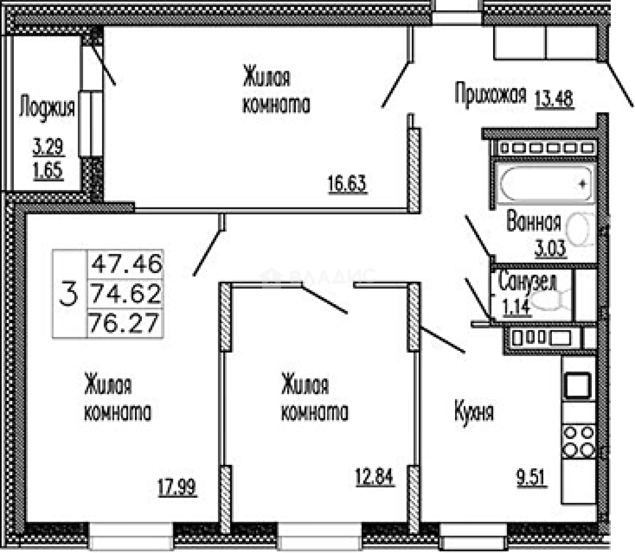
74.62 м²
Общая площадь
47.46 м²
Жилая площадь
9.51 м²
Площадь кухни
4 из 9
Этаж
Описание
В жилом комплексе представлены разнообразные планировки: от студий до 3-х комнатных квартир. На выбор предлагаются варианты без отделки, с отделкой white box и с готовой чистовой отделкой. Большинство квартир имеют балконы и лоджии, а из окон открывается живописный вид на парк Абрамцево.
На территории комплекса оборудованы детские и спортивные площадки, а на первых этажах домов расположены кафе, магазины и аптеки. В рамках проекта запланировано строительство спортивного дворца (ФОК) с залом для мини-футбола, волейбола и тенниса. Кроме того, будут доступны два открытых поля для игры в теннис, волейбол и мини-футбол. В пешей доступности от жилого комплекса находятся отреставрированные школа и детский сад. Для владельцев автомобилей на территории комплекса предусмотрены открытые стоянки.
Жилой комплекс расположен в городе Хотьково, в окружении живописных парков и водоемов. В 15 минутах ходьбы находятся Покровский парк и река Пажа, а в 100 метрах начинается Абрамцевский лес. Комплекс окружен развитой инфраструктурой: рядом расположены магазины, детский сад и школа, колледж, поликлиника, больница, стадион, спортивный клуб, музей и другие учреждения. В пешей доступности находится железнодорожная станция Абрамцево. Рядом с жилым кварталом проходит Художественный проезд, который ведет к Ярославскому шоссе. Расстояние до МКАД составляет 51 километр.
О квартире
Общая площадь
74.62 м²
Жилая площадь
47.46 м²
Площадь кухни
9.51 м²
Площадь комнат
16.63+17.99+12.84 м²
Высота потолков
2.55 м
Подъезд
1
Этаж
4
Окна выходят
На улицу
О доме
Год постройки
2025
Этажность
9
Количество подъездов
3
Материал постройки
Кирпично-монолитный
Материал перекрытий
Монолитные
Отопление
Центральное
Грузовых лифтов
1
Парковка
Наземная
Расположение
Россия, Московская область, Сергиево-Посадский городской округ, Хотьково
Ипотечный калькулятор
Заполните 1 анкету — получите предложения от десятков банков на специальных условиях
Программа ипотеки
Стоимость жилья, ₽
Первый взнос, ₽
Срок кредита
от 5.75%
Ставка
от 53 260 ₽
Платеж в месяц
Расчёт носит информационный характер и не является публичной офертой
Похожие объекты













3-комн. квартира, 74,6 м², 3/9 эт.













3-комн. квартира, 74,6 м², 6/9 эт.













3-комн. квартира, 77,0 м², 6/9 эт.













3-комн. квартира, 78,1 м², 8/9 эт.
Консультант по новостройкам
8 465 970 ₽
113 455 ₽/м²














