Продается 1-комн. квартира, 47.4 м²
Россия, Иркутск, улица Пушкина, 25
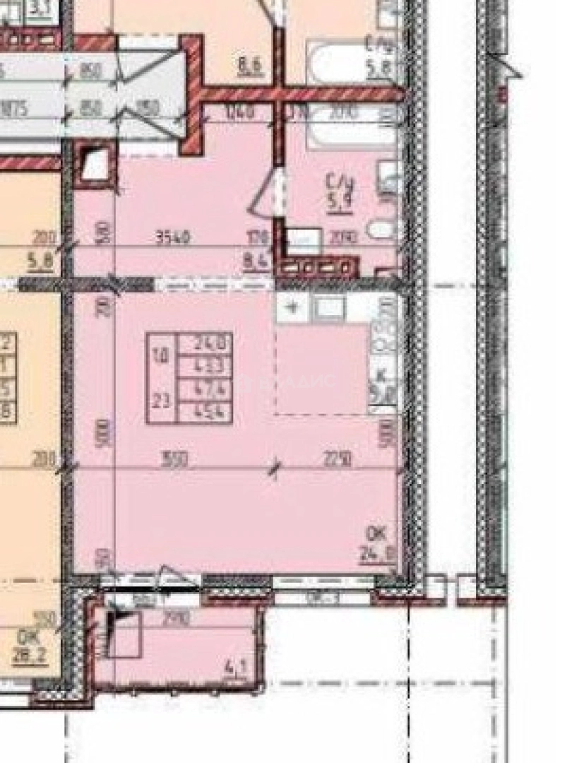
47.4 м²
Общая площадь
24 м²
Жилая площадь
5 м²
Площадь кухни
3 из 15
Этаж
Описание
Площадь: 47,4 м² (жилая – 5 м²)
Отделка: черновая
Описание:
Квартира расположена в квартале "Онегин", прямо на берегу живописной реки Ангары, рядом с железнодорожным вокзалом, престижными вузами, детскими садами и школами — всё необходимое для комфортной жизни буквально под рукой!
Особенности квартиры:
- Однокомнатная квартира в черновой отделке с свободной планировкой.
- Находится на 3-м этаже современного жилого комплекса.
- Продаётся по договору уступки права требования (цессия).
- Отличный вид на реку Ангара и панораму города.
- Электрика, стяжка пола, инженерные коммуникации уже предусмотрены застройщиком.
- Балкон с панорамным видом на природу и городские пейзажи.
Подходит для тех, кто ценит комфорт, близость инфраструктуры и красивый пейзаж из окна каждый день.
Обратите внимание: продажа осуществляется по договору уступки от физического лица, ипотечные программы типа семейной ипотеки не поддерживаются данным объектом недвижимости.
Интересует предложение? Свяжитесь с нами прямо сейчас!
О квартире
Общая площадь
47.4 м²
Жилая площадь
24 м²
Площадь кухни
5 м²
Подъезд
10
Этаж
3
Расположение квартиры
не угловая
Окна выходят
Во двор
Ремонт
Без отделки
Европланировка
Да
Комнаты изолированныe
Да
О доме
Год постройки
2024
Этажность
15
Количество подъездов
5
Материал постройки
Кирпичный
Материал перекрытий
Ж/б плиты
Отопление
Центральное
Пассажирских лифтов
1
Грузовых лифтов
1
Парковка
Наземная
Расположение
Россия, Иркутск, улица Пушкина, 25
Ипотечный калькулятор
Заполните 1 анкету — получите предложения от десятков банков на специальных условиях
Программа ипотеки
Стоимость жилья, ₽
Первый взнос, ₽
Срок кредита
от 5.75%
Ставка
от 47 813 ₽
Платеж в месяц
Расчёт носит информационный характер и не является публичной офертой
Предложите свою цену
7 600 000 ₽
160 338 ₽/м²










