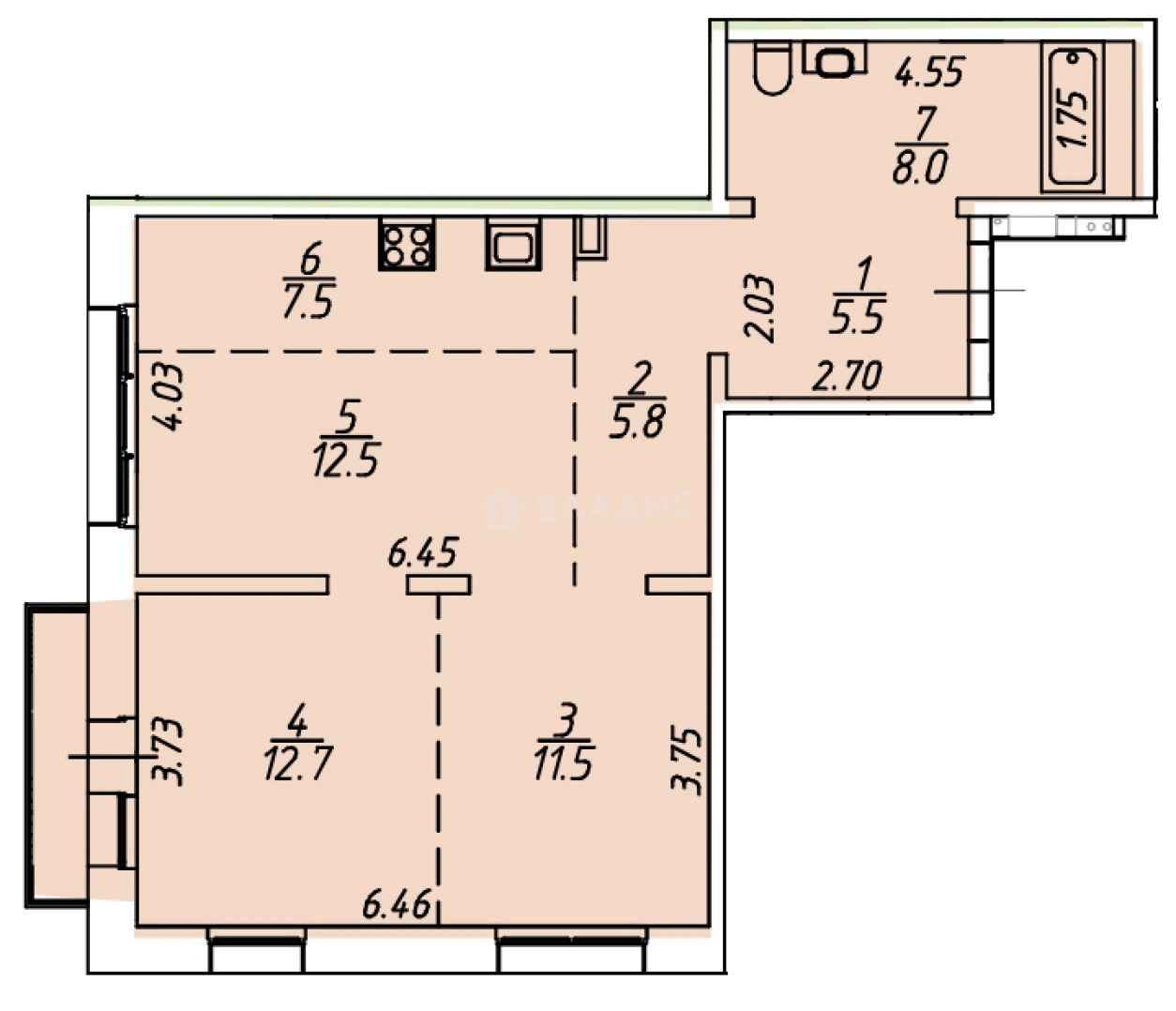
Продается 3-комн. квартира, 65.4 м²
Россия, Иркутск, Култукская улица, 18
65.4 м²
Общая площадь
36.7 м²
Жилая площадь
7.5 м²
Площадь кухни
18 из 18
Этаж
Описание
«Стрижи Сити» - уникальный для Иркутска архитектурный проект. Каждая блок-секция первой очереди имеет форму сердца. В ЖК около 40 различных планировок квартир, что позволит каждому покупателю найти свою. В каждой квартире панорамные окна, большая часть квартир смотрит на восток, запад и юг, поэтому они очень уютные и светлые. Теплый профиль балконов позволит превратить их в дополнительную комнату – кабинет или лаунж-зону. В дом запроектировано 3 входа: с улицы, с паркинга и детской площадки.
Двор закрытый, вдали от машин и располагается на безопасном огороженном навесе. Во дворе установлен детский городок европейского формата, на резинополе ярких цветов размещены готовые игровые решения (твистер, классики). Зоны для занятий спортом и подвижных игр — для активных «стрижителей», лавочки-сердечки, комфортные деревянные шезлонги и беседки — для тех, кто хочет отдохнуть.
Во дворе установлено комфортное двухуровневое освещение. На всей территории «Стрижи Сити» высажены деревья и многолетние цветы.
Подъезд «Стрижи Сити» тоже нестандартный – на входе в дом находится большое лобби с потолком высотой 4 метра. Это просторное, хорошо освещенное пространство с индивидуальным дизайном. Здесь можно пообщаться с соседями или посидеть с гостями, встретить курьера или отпустить поиграть детей, если за окном непогода.
В общественных зонах расположены туалеты, на первых этажах предусмотрены велосипедные, а на вторых – колясочные, чтобы родителям было удобно выходить во двор. А еще застройщик позаботился о владельцах домашних животных и в каждом подъезде сделал лапомоечную, чтобы после прогулки можно было привести питомцев в порядок. Все это сохраняет чистоту подъезда и повышает функционал квартиры.
В цокольном этаже расположены индивидуальные кладовые, в которых можно хранить сезонные и крупногабаритные вещи. На первом этаже жилого комплекса находятся офисы и помещения для коммерческой деятельности. Жилой комплекс оборудован самыми современными системами пожарной безопасности и видеонаблюдения. Под навесом находится паркинг, из которого организован вход в здание. Уникальные фасады «Стрижи Сити» оборудованы современной архитектурной подсветкой, а пассажиры самолетов, подлетая к Иркутску, смогут увидеть сердца «Стрижи Сити», которые уже становятся достопримечательностью Иркутска.
«Стрижи Сити» — второй после башни «Небо» объект в регионе, построенный и реализуемый с использованием эскроу-счетов — инструмента государственной защиты.
О квартире
Общая площадь
65.4 м²
Жилая площадь
36.7 м²
Площадь кухни
7.5 м²
Площадь комнат
36,7 м²
Подъезд
1
Этаж
18
Расположение квартиры
не угловая
Окна выходят
На улицу
Совмещенных санузлов
1
Ремонт
Без отделки
О доме
Год постройки
2022
Этажность
18
Количество подъездов
1
Материал постройки
Кирпично-монолитный
Материал перекрытий
Ж/б плиты
Отопление
Центральное
Пассажирских лифтов
1
Грузовых лифтов
1
Парковка
Наземная
Расположение
Россия, Иркутск, Култукская улица, 18
Ипотечный калькулятор
Заполните 1 анкету — получите предложения от десятков банков на специальных условиях
Программа ипотеки
Стоимость жилья, ₽
Первый взнос, ₽
Срок кредита
от 5.75%
Ставка
от 65 830 ₽
Платеж в месяц
Расчёт носит информационный характер и не является публичной офертой
Похожие объекты
Консультант по новостройкам
10 464 000 ₽
160 000 ₽/м²












