Продается 3-комн. квартира, 59.1 м²
Россия, Новосибирская область, Искитим, Юбилейный проспект, 11
59.1 м²
Общая площадь
42.4 м²
Жилая площадь
6 м²
Площадь кухни
3 из 3
Этаж
Описание
Предлагается к продаже трехкомнатная квартира в трехэтажном кирпичном доме.
Окна выходят на две стороны.
В эту цену входит гараж, расположенный возле дома, есть погреб.
Один собственник, возможно оформление ипотеки!
О квартире
Общая площадь
59.1 м²
Жилая площадь
42.4 м²
Площадь кухни
6 м²
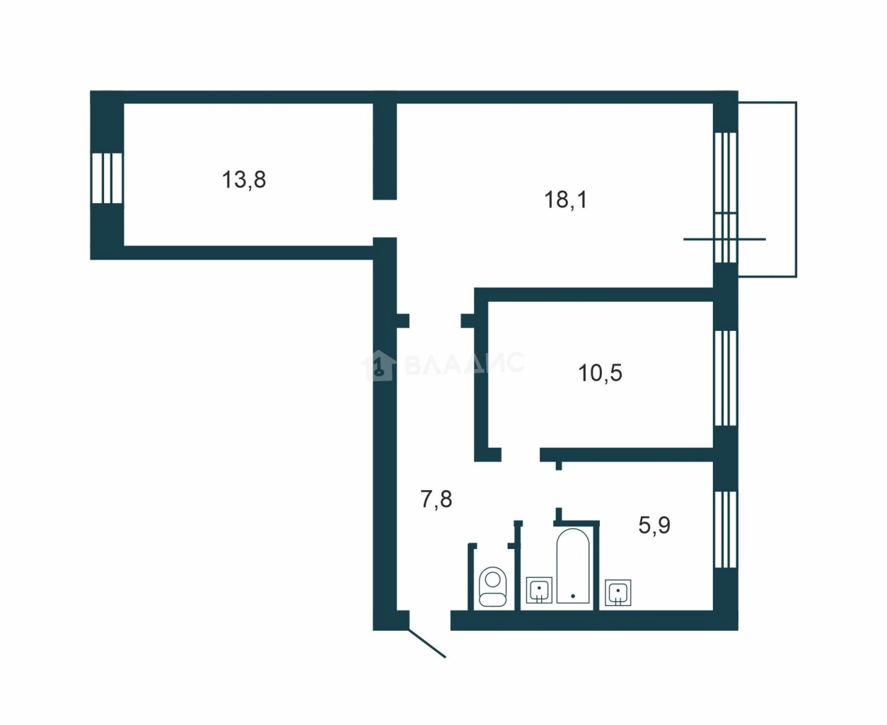
Площадь комнат
18,1+13,8+10,5 м²
Высота потолков
2.5 м
Подъезд
1
Этаж
3
Расположение квартиры
не угловая
Окна выходят
На улицу, Во двор
Раздельных санузлов
2
О доме
Год постройки
1972
Этажность
3
Количество подъездов
2
Материал постройки
Кирпичный
Материал перекрытий
Ж/б плиты
Отопление
Центральное
Расположение
Россия, Новосибирская область, Искитим, Юбилейный проспект, 11
Ипотечный калькулятор
Заполните 1 анкету — получите предложения от десятков банков на специальных условиях
Программа ипотеки
Стоимость жилья, ₽
Первый взнос, ₽
Срок кредита
от 5.75%
Ставка
от 23 844 ₽
Платеж в месяц
Расчёт носит информационный характер и не является публичной офертой
Предложите свою цену
3 790 000 ₽
64 129 ₽/м²



























































