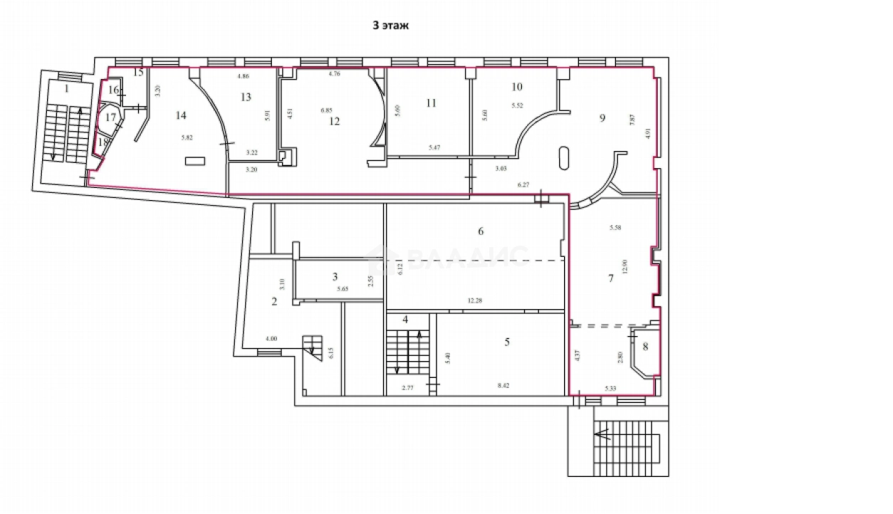
Продается Офис, 446.5 м²
Россия, Иваново, улица Пушкина, 9
446.5 м²
Общая площадь
Отдельный
Вход в помещение
Пропускная система
Доступ в помещение
3 из 5
Этаж
Описание
Срочно. В продаже офисное помещение площадью 446,5 кв.м., находящееся на третьем этаже отдельно стоящего современного здания.
Уникальность расположения здания выделяется сверх-интенсивным пешим и автомобильным трафиком т.к. здание расположено в 50 метрах от Шереметевского проспекта — это самый центр города Иваново, где сосредоточенна вся деловая активность городской жизни.
- помещение полностью готово для использования
- городские коммуникации
- дорогой и качественный дизайнерский ремонт, эксклюзивная мебель
- хорошее освещение и удобная планировка
- охранно-пожарная сигнализация
- кондиционеры во всех помещениях
Есть кухонная зона, два санузла для персонала и один санузел в VIP кабинете.
Документы в порядке. Быстрый выход на сделку
Об объекте
Общая площадь
446.5 м²
Этаж
3
Высота потолков
2.5 м
Электрическая мощность
15 кВт
Раздельных санузлов
3
Мебель
Да
Ремонт
Дизайнерский
Вход в помещение
Отдельный
Доступ в помещение
Пропускная система
Удобства
Интернет
Кондиционер
Вентиляция
Кухня
Мебель
Охрана
Пожарная сигнализация
О здании
Тип коммерции
Отдельное здание
Год постройки
2014
Материал постройки
Монолитный
Отопление
Центральное
Этажей в доме
5
Парковка
Наземная
Расположение
Россия, Иваново, улица Пушкина, 9
Ипотечный калькулятор
Заполните 1 анкету — получите предложения от десятков банков на специальных условиях
Программа ипотеки
Стоимость жилья, ₽
Первый взнос, ₽
Срок кредита
от 5.75%
Ставка
от 220 188 ₽
Платеж в месяц
Расчёт носит информационный характер и не является публичной офертой
Предложите свою цену
35 000 000 ₽
78 387 ₽/м²













































