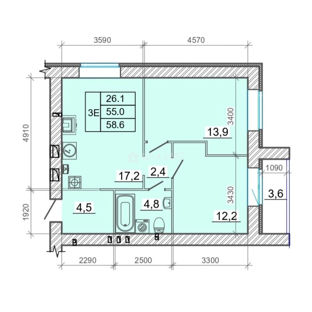
Продается 3-комн. квартира, 58.6 м²
Россия, Иваново, Большой Транспортный переулок
58.6 м²
Общая площадь
26.1 м²
Жилая площадь
17.2 м²
Площадь кухни
5 из 15
Этаж
Описание
Описания нет
О квартире
Общая площадь
58.6 м²
Жилая площадь
26.1 м²
Площадь кухни
17.2 м²
Этаж
5
Окна выходят
На улицу
О доме
Год постройки
2026
Этажность
15
Количество подъездов
1
Материал постройки
Кирпичный
Материал перекрытий
Ж/б плиты
Отопление
Индивидуальный котел
Парковка
Наземная
Расположение
Россия, Иваново, Большой Транспортный переулок
Ипотечный калькулятор
Заполните 1 анкету — получите предложения от десятков банков на специальных условиях
Программа ипотеки
Стоимость жилья, ₽
Первый взнос, ₽
Срок кредита
от 5.75%
Ставка
от 54 562 ₽
Платеж в месяц
Расчёт носит информационный характер и не является публичной офертой
Похожие объекты
Консультант по новостройкам
8 672 800 ₽
148 000 ₽/м²





























