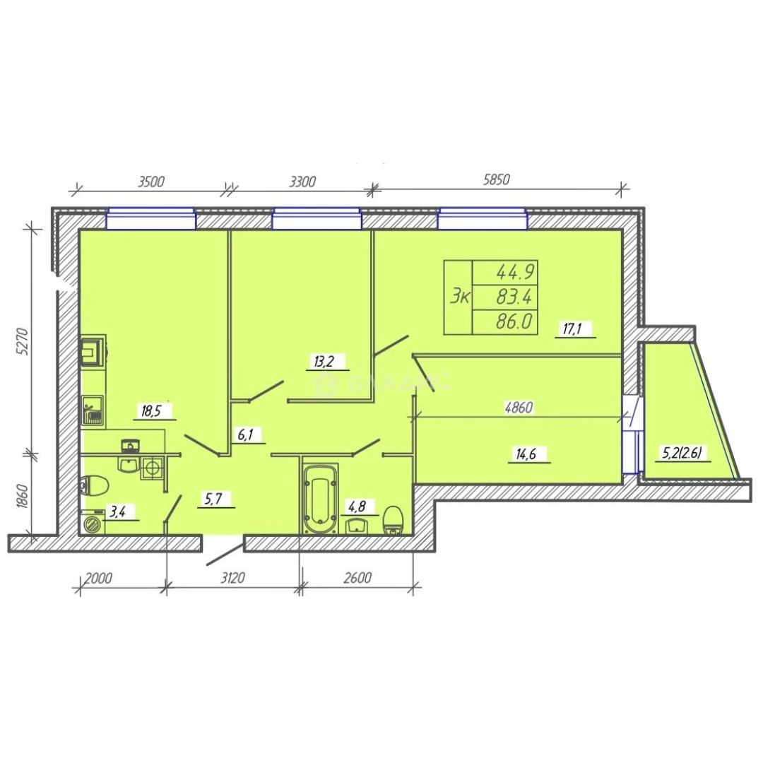
Продается 3-комн. квартира, 86 м²
Россия, Иваново, Конспиративный переулок, 19
86 м²
Общая площадь
44.9 м²
Жилая площадь
18.5 м²
Площадь кухни
9 из 10
Этаж
Описание
Описания нет
О квартире
Общая площадь
86 м²
Жилая площадь
44.9 м²
Площадь кухни
18.5 м²
Этаж
9
Окна выходят
На улицу
О доме
Год постройки
2026
Этажность
10
Количество подъездов
1
Материал постройки
Кирпичный
Материал перекрытий
Ж/б плиты
Отопление
Индивидуальный котел
Парковка
Наземная
Расположение
Россия, Иваново, Конспиративный переулок, 19
Ипотечный калькулятор
Заполните 1 анкету — получите предложения от десятков банков на специальных условиях
Программа ипотеки
Стоимость жилья, ₽
Первый взнос, ₽
Срок кредита
от 5.75%
Ставка
от 108 207 ₽
Платеж в месяц
Расчёт носит информационный характер и не является публичной офертой
Похожие объекты
Консультант по новостройкам
17 200 000 ₽
200 000 ₽/м²






