Продается 2-комн. квартира, 64.3 м²
Россия, Московская область, городской округ Пушкинский, Ивантеевка, улица Новая Слобода, 4
Щелковская
30 мин.
64.3 м²
Общая площадь
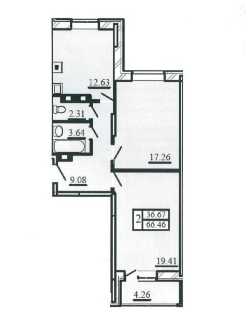
37 м²
Жилая площадь
12.63 м²
Площадь кухни
10 из 16
Этаж
Описание
Общая площадь квартиры 64,3 метра, просторная кухня 12,63 метра и две изолированные комнаты 20 и 17 метров. Санузел раздельный, полностью в плитке, на полу паркетная доска, установлены стеклопакеты, лоджия застеклена, окна на обе стороны дома. Квартира продается с кухонным гарнитуром, остальная мебель и техника не остаются.
В непосредственной близости от дома есть вся необходимая инфраструктура и даже больше: рядом детские сады, школа, продуктовые сетевые магазины, аптеки. До ТЦ "Акварель" и "Ашан" буквально 10 минут на машине. Отличная транспортная доступность: до ж/д станции Ивантеевка-2 15 минут пешком, далее 50 минут на электричке до станции метро Комсомольская; автобусная остановка через дорогу от дома, далее 45 минут на 316 автобусе то станции метро ВДНХ.
В собственности более 5 лет. Помощь в одобрении ипотеки на выгодных для Вас условиях! Звоните и записывайтесь на просмотр, организуем оперативный показ!! Это Ваша квартира!
О квартире
Общая площадь
64.3 м²
Жилая площадь
37 м²
Площадь кухни
12.63 м²
Площадь комнат
20+17 м²
Высота потолков
2.7 м
Подъезд
5
Этаж
10
Расположение квартиры
не угловая
Окна выходят
На улицу
Раздельных санузлов
1
О доме
Год постройки
2014
Этажность
16
Количество подъездов
6
Материал постройки
Кирпичный
Материал перекрытий
Монолитные
Отопление
Центральное
Пассажирских лифтов
1
Грузовых лифтов
1
Парковка
Наземная
Расположение
Россия, Московская область, городской округ Пушкинский, Ивантеевка, улица Новая Слобода, 4
Щелковская
30 мин.
Ипотечный калькулятор
Заполните 1 анкету — получите предложения от десятков банков на специальных условиях
Программа ипотеки
Стоимость жилья, ₽
Первый взнос, ₽
Срок кредита
от 5.75%
Ставка
от 65 428 ₽
Платеж в месяц
Расчёт носит информационный характер и не является публичной офертой
Похожие объекты















2-комн. квартира, 62,2 м², 9/13 эт.
Медведково
27 мин.


















3-комн. квартира, 70,7 м², 9/19 эт.






























2-комн. квартира, 60,8 м², 10/12 эт.













3-комн. квартира, 62,2 м², 3/5 эт.
Щелковская
29 мин.
Предложите свою цену
10 400 000 ₽
161 742 ₽/м²




































































