ЖК Nametkin Tower в Москве
Россия, Москва, улица Намёткина, 8с7
Воронцовская
9 мин.
4 кв. 2025
Срок сдачи
2 корпуса
Количество корпусов
Описание
С верхних этажей «Nametkin Tower» открываются потрясающие панорамные виды на город. Окна выходят сразу на три стороны света. Высота окон составляет 2,7 метра. Энергоэффективные окна с отличной звукоизоляцией обеспечивают тишину и уют. Система вентиляции создает идеальную атмосферу в любое время года, а приборы высокой очистки увлажняют воздух, избавляя его от городской пыли и аллергенов.
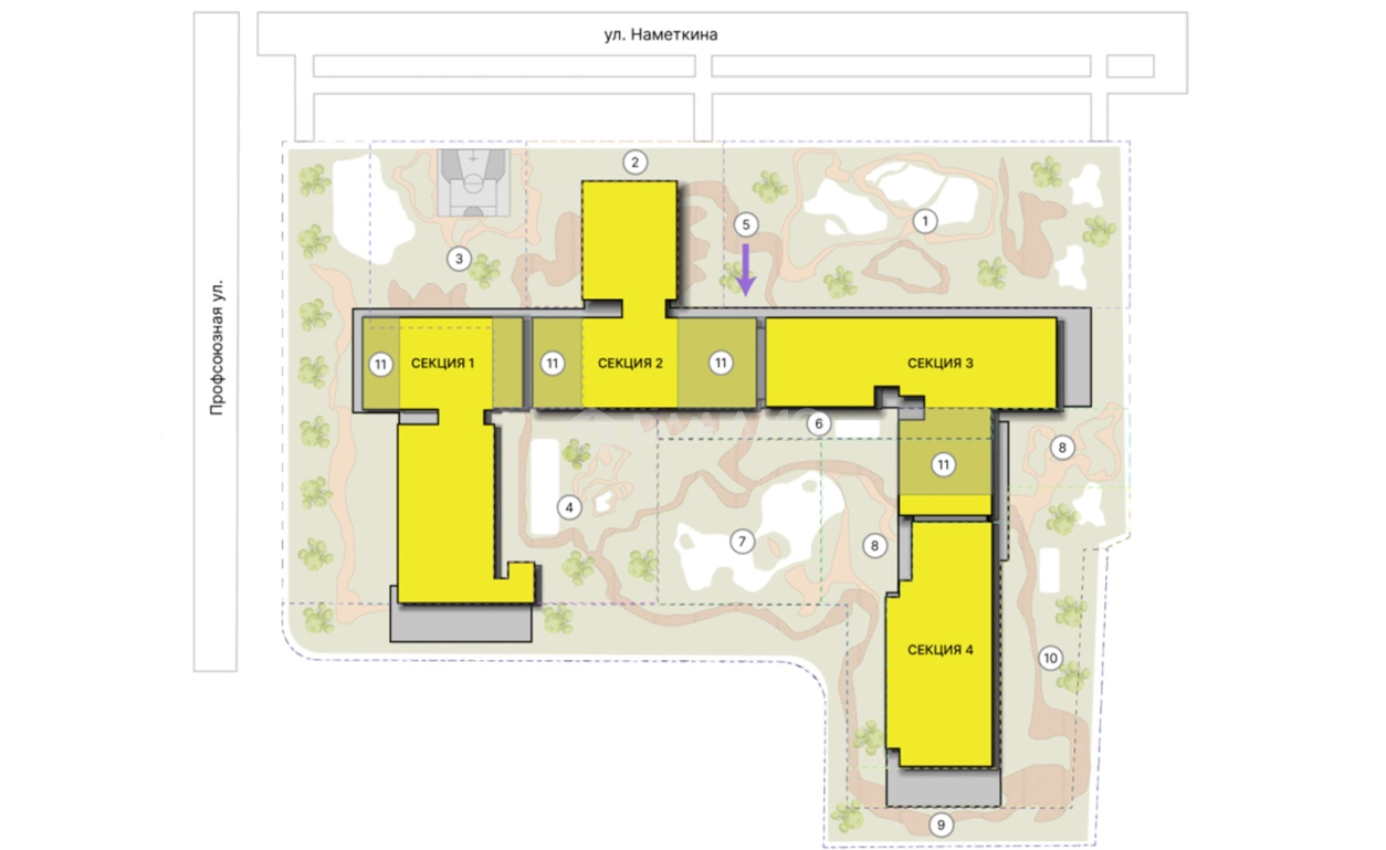
Благоустройство территории «Nametkin Tower» разделено на 2 пространства — общественное и приватное. Проезд для автомобилей во внутренний двор закрыт. На придомовой территории оборудованы дорожки для прогулок, уединенные беседки среди высаженного сада крупномерных деревьев и безопасные детские площадки. Для резидентов на 25 этаже предусмотрена уникальная терраса с коворкингом, приватными лаунж зонами, баром, игровыми комнатами, залом для занятия спортом и танцами. Все корпуса объединяет двухуровневый подземный паркинг.
Комплекс апартаментов «Nametkin Tower» находится в районе Черемушки. В пешей доступности находятся магазины, кафе, рестораны, салоны красоты, детские сады, школы, банки, Воронцовский парк. До метро «Калужская», «Воронцовская», «Новые Черемушки» — 10 минут пешком.
Корпус 1-Очередь 1
Срок сдачи: 4 кв. 2025
Материал постройки: Монолитный
Этажей в доме: 29
Материал перекрытий: Ж/б плиты
Парковка: Подземная
Расположение
Россия, Москва, улица Намёткина, 8с7
Воронцовская
9 мин.
Новые Черемушки
10 мин.
Калужская
11 мин.
Профсоюзная
22 мин.
Новаторская
26 мин.
Беляево
4 мин.
Академическая
4 мин.
Зюзино
30 мин.
Ипотечный калькулятор
Заполните 1 анкету — получите предложения от десятков банков на специальных условиях
Программа ипотеки
Стоимость жилья, ₽
Первый взнос, ₽
Срок кредита
от 5.75%
Ставка
от 93 108 ₽
Платеж в месяц
Расчёт носит информационный характер и не является публичной офертой
Другие ЖК рядом










































