Продается комната, 13 м²
Россия, Калининград, Серпуховская улица, 35
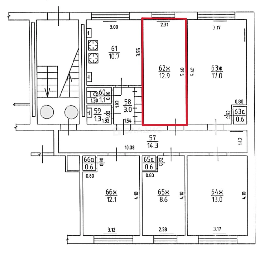
13 м²
Площадь комнаты
11 м²
Площадь кухни
5
Комнат в квартире
1 из 5
Этаж
Описание
Ориентир - Ленинский проспект, Багратиона, Полоцкая.
Площадь комнаты - 13 кв.м., кухня - 11 кв.м., центральное отопление.
Комната с новым косметическим ремонтом:
- на полу линолеум, на стенах обои, натяжные потолки, установлены стеклопакеты;
- места общего пользования: кухня, коридор и санузел требуют косметического ремонта.
Придомовая территория и подъезд:
- современная спортивная площадка, оборудованная тренажерами;
- для автомобилистов - свободная парковка во дворе дома.
Удачное местоположение в центре города с развитой инфраструктурой:
- лицей № 17, детские сады № 19, 28 и 104, Морской рыбопромышленный колледж, Калининградский государственный технический институт, Южный вокзал, супермаркеты "Спар" и "Виктория", Музей изобразительных искусств, Бранденбургские ворота, Калининградская областная филармония, Рыбная деревня, Остров Канта и многое другое.
Бонусы:
- покупайте и продавайте вместе с Авеню-Риэлт и участвуйте в розыгрыше 300 тысяч рублей на путешествие!
Звоните! Записывайтесь на просмотр в удобное для вас время!
О комнате
Площадь комнаты
13 м²
Площадь кухни
11 м²
Площадь комнат
13 м²
Комнат в блоке
5
Тип комнаты
Коммунальная
Комнат в квартире
5
Этаж
1
Расположение квартиры
не угловая
Окна выходят
Во двор
Раздельных санузлов
1
О доме
Год постройки
1967
Этажность
5
Материал постройки
Панельный
Материал перекрытий
Ж/б плиты
Отопление
Центральное
Расположение
Россия, Калининград, Серпуховская улица, 35
Ипотечный калькулятор
Заполните 1 анкету — получите предложения от десятков банков на специальных условиях
Программа ипотеки
Стоимость жилья, ₽
Первый взнос, ₽
Срок кредита
от 5.75%
Ставка
от 7 550 ₽
Платеж в месяц
Расчёт носит информационный характер и не является публичной офертой
Предложите свою цену
1 200 000 ₽
92 308 ₽/м²





























