Продается 2-комн. квартира, 52.6 м²
Россия, Калининград, Ялтинская улица, 32
52.6 м²
Общая площадь
33.9 м²
Жилая площадь
12 м²
Площадь кухни
1 из 1
Этаж
Описание
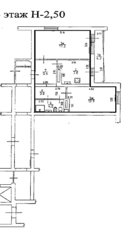
Квартира расположена на первом этаже кирпичного дома 1945 года постройки. Высота потолков 2,6 метра создаёт ощущение простора и свободы. Благодаря индивидуальному котлу вы сможете регулировать отопление по своему усмотрению, теплые полы. Окна выходят во двор и в сад, что обеспечивает достаточное количество естественного света.
Общая площадь квартиры составляет 52,6 кв. м, из которых 33,9 кв. м — жилая площадь. Две изолированные комнаты с площадями 17,7 кв. м и 16,2 кв. м идеально подойдут для разных целей. Кухня площадью 12 кв. м станет местом для воплощения кулинарных фантазий.
Косметический ремонт позволит новым владельцам воплотить свои дизайнерские идеи. Совмещённый санузел удобен и функционален.
Имеется подвал, где можно хранить все, что мешает в квартире.
Не упустите шанс стать владельцем этой уютной квартиры. Позвоните нам прямо сейчас, чтобы узнать больше и записаться на просмотр.
Мы гарантируем безопасную сделку и юридическую поддержку нашим клиентам. Поможем одобрить ипотеку с сниженной ставкой.
Возможен обмен на Вашу недвижимость с доплатой!
Дарим 300 000 рублей на путешествие!
Покупайте или продавайте недвижимость вместе с агентством "Авеню-Риэлт Владис" и получайте шанс отправиться в путешествие Вашей мечты!
О квартире
Общая площадь
52.6 м²
Жилая площадь
33.9 м²
Площадь кухни
12 м²
Площадь комнат
17,7+16,2 м²
Высота потолков
2.6 м
Подъезд
1
Этаж
1
Расположение квартиры
угловая
Окна выходят
На улицу, Во двор
Совмещенных санузлов
1
О доме
Год постройки
1945
Этажность
1
Количество подъездов
2
Материал постройки
Кирпичный
Материал перекрытий
Деревянные
Отопление
Индивидуальный котел
Расположение
Россия, Калининград, Ялтинская улица, 32
Ипотечный калькулятор
Заполните 1 анкету — получите предложения от десятков банков на специальных условиях
Программа ипотеки
Стоимость жилья, ₽
Первый взнос, ₽
Срок кредита
от 5.75%
Ставка
от 36 489 ₽
Платеж в месяц
Расчёт носит информационный характер и не является публичной офертой
Похожие объекты
Предложите свою цену
5 800 000 ₽
110 266 ₽/м²


























































































































































