Продается 5-комн. квартира, 353 м²
Россия, Калининград, Красная улица, 63А
353 м²
Общая площадь
188 м²
Жилая площадь
33 м²
Площадь кухни
7 из 13
Этаж
Описание
Квартира в ПРЕСТИЖНОМ районе в ЭЛИТНОМ доме на Красной.
Дом находится в исторической части Центрального района Калининграда. Рядом живописный немецкий парк, теннисные корты и лучшая в городе Гимназия №1.
Состояние квартиры - серый ключ. Свободная планировка.
Одна квартира на этаже. Индивидуальный лифтовой холл. Подземный паркинг.
Стены из красного керамического кирпича.
ВЫСОТА ПОТОЛКОВ 3,3м.
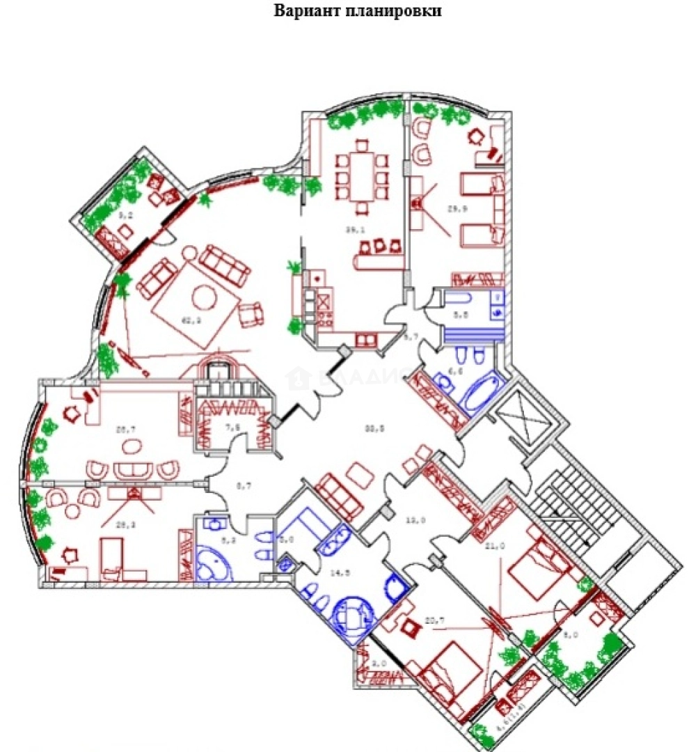
Гостиная 68кв.м., кухня - столовая 33кв.м., кабинет 16кв.м., 4 спальни (29+21+28+26кв.м.), 2 гардеробные (6+8кв.м.), 3 ванные комнаты (7+8+21кв.м.), гостевой санузел 6кв.м., прачечная 6кв.м., кладовка 4кв.м., лоджия 5к.в.м., два балкона (1,5+2кв.м.), зимний сад 11кв.м..
Автономное отопление, теплые полы.
В гостиной каминный дымоход.
Квартира - КОНСТРУКТОР.
Можно сделать 5 или 6 комнат. И по мере необходимости это изменить!
ОЧЕНЬ ВЫСОКОЕ качество строительства и серьезный подход:
- входная дверь GERDA -Luxe;
- окна TROKAL;
- звукоизоляция полов STIROPOL 50мм и армированная стяжка 50мм;
- стены из кирпича, оштукатурены жидким гипсом KNAUF;
- инженерные сети все заведены в помещение разбора;
- ТВ (кабельное и общевещательное), STV, iPTV и интернет (выделенная линия оптоволокно) -заведены в квартиру;
- пожарная сигнализация смонтирована в холле квартиры;
- связь с постом охраны -кабель видеодомофона заведен в квартиру.
Окна квартиры 80% ориентированы на юг, юго-запад, запад.
В подъезде всего 10 квартир.
Ориентиры: ул. Щорса, ул. Чернышевского, ул. Леонова, ул. Чекистов, ул. Лейтенанта Яналова, Советский проспект, проспект Мира, ул. Карла Маркса.
Звоните или пишите, Лариса.
24/7
«Авеню-Риэлт» - Действуем в Ваших интересах с 2010 года!
О квартире
Общая площадь
353 м²
Жилая площадь
188 м²
Площадь кухни
33 м²
Площадь комнат
68+29+28+26+ 21+16 м²
Этаж
7
Расположение квартиры
не угловая
Окна выходят
На улицу
Раздельных санузлов
1
Совмещенных санузлов
3
Ремонт
Без отделки
О доме
Год постройки
2009
Этажность
13
Количество подъездов
5
Материал постройки
Кирпичный
Материал перекрытий
Ж/б плиты
Отопление
Индивидуальный котел
Пассажирских лифтов
1
Парковка
Подземная
Попадает в реновацию
Да
Расположение
Россия, Калининград, Красная улица, 63А
Ипотечный калькулятор
Заполните 1 анкету — получите предложения от десятков банков на специальных условиях
Программа ипотеки
Стоимость жилья, ₽
Первый взнос, ₽
Срок кредита
от 5.75%
Ставка
от 220 188 ₽
Платеж в месяц
Расчёт носит информационный характер и не является публичной офертой
Предложите свою цену
35 000 000 ₽
99 150 ₽/м²












