Продается 1-комн. квартира, 47 м²
Россия, Калининград, Флотская улица, 9
47 м²
Общая площадь
18.6 м²
Жилая площадь
12.3 м²
Площадь кухни
9 из 10
Этаж
Описание
Ориентиры: улицы Кипарисовая, Крымский проезд, Московский проспект, Аксакова, Молодой Гвардии.
Дом 2018 года постройки с большим внутренним двором со множественными детскими площадками, огороженной футбольной зоной. Во дворе установлены лавочки, высажено озеленение. Для Вашего автомобиля есть возможность бесплатной парковки машины по периметру дома и во дворе, а также возможность аренды или покупки подземного паркинга.
Квартира расположена на девятом этаже десятиэтажного дома.
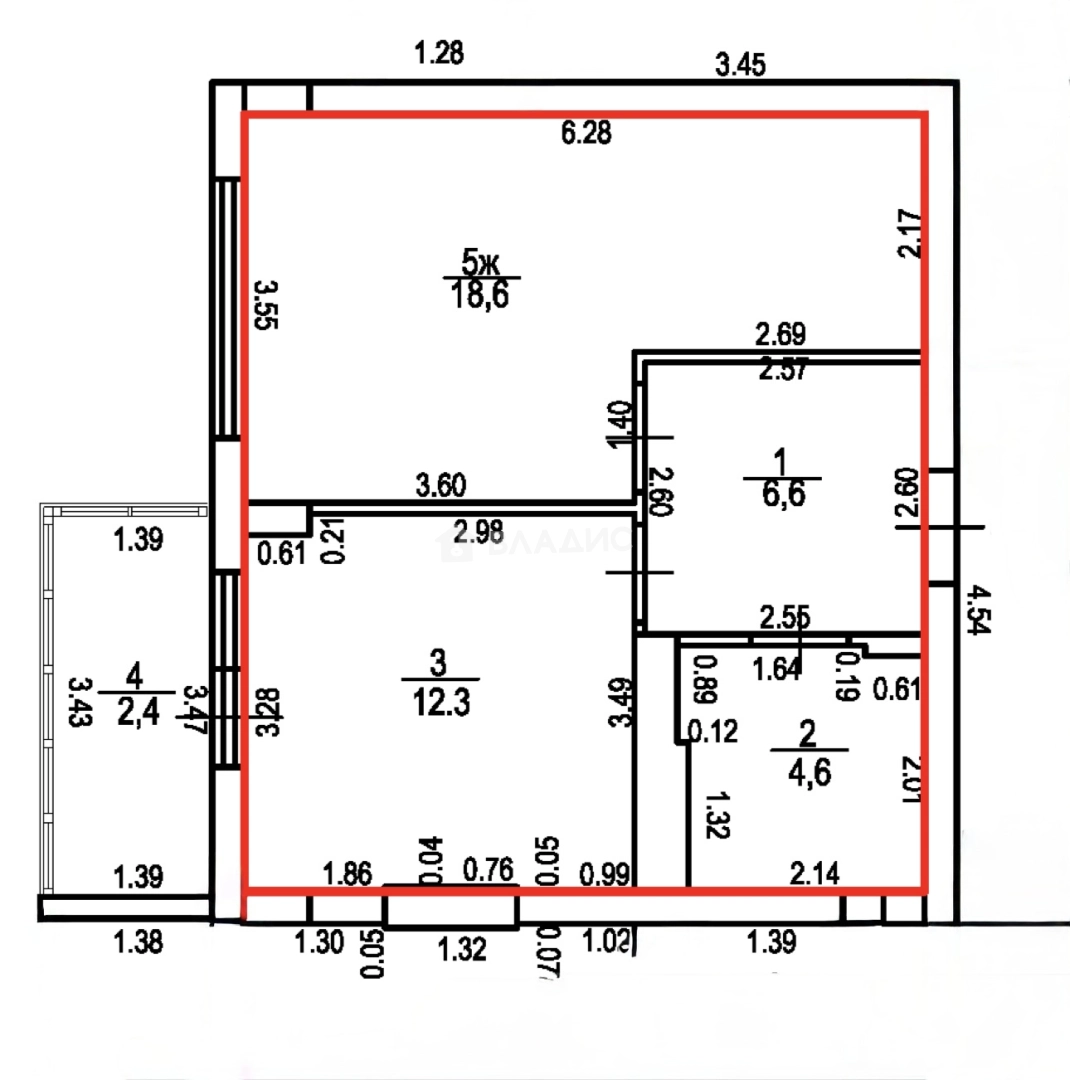
Параметры квартиры:
кухня - 12,3 кв.м
комната - 18,6 кв.м
коридор - 6,6 кв.м
санузел совмещен - 4,6 кв.м
лоджия - 4,9 кв.м
Кухня с выходом на лоджию.На лоджии плитка на полу, стены -штукатурка . Лоджия с панорамным остеклением, вид из балкона и комнаты на школу №57.
На полу кухни уложена плитка. Стены с качественными обоями. Потолок натяжной матовый. Освещение - люстра, либо точечные светильники над зоной гарнитура. Фартук выполнен из кафеля. Техника: посудомоечная машина bosch(немецкого производства с баком воды); стиральная машина LG с инверторным двигателем; встроенный духовой шкаф; газовая варочная поверхность и встроенная микроволновая печь.
АВТОНОМНОЕ ОТОПЛЕНИЕ. Установлен термостат на газовый котел, который обеспечивает комфортную температуру в квартире круглосуточно(ручная и регулировка в приложении через смартфон).
Автоматика в электрическом щите производства EATON(США) Автомат на входе и УЗО 5 шт . Реле напряжения-защищает все приборы в квартире от пониженного и повышенного напряжения.
Фильтр механической очистки воды на входе-защищает газовый котел и сантехнику.
Коридор правильной формы. На полу уложена плитка. Стены - качественные обои, потолок натяжной с точечными светильниками. В коридоре вместительный большой шкаф.
Санузел совмещенный, полностью в кафеле, натяжной потолок с точечными светильниками, установлена принудительная вентиляция включение от отдельного выключателя.
В комнате уложен ламинат, стены с обоями, потолок-матовый натяжной.
Мебель: кровать с подъемным механизмом и с ортопедическим матрасом (с местами хранения); диваны Moon cо спальными местами (с антивандальной тканью); шкаф; комод и стол производства ШАТУРА
Почти вся мебель и техника остаётся, обговаривается!
ЖК ВОСТОК возведен по принципу «город в городе». Это микрорайон полностью из новостроек с собственной инфраструктурой, где все необходимое находится в шаговой доступности: крупнейшая в области школа №57 (с бассейном), детские сады №132, 133, магазины, отделение почты, рестораны, фитнес-центр Альбатрос с бассейном и спортзалом.Недалеко ЖК "Русская Европа" и бывший аэродром "Девау". Сейчас из района «Восток» за 10 минут можно добраться до центра города, выехать на Окружную дорогу за пять минут, попасть на морское побережье – за 25 минут.
Полная стоимость в договоре, быстрый выход на сделку.
ЗВОНИТЕ! Произведем фактический показ в удобное для вас время!
О квартире
Общая площадь
47 м²
Жилая площадь
18.6 м²
Площадь кухни
12.3 м²
Площадь комнат
18,6 м²
Высота потолков
2.7 м
Подъезд
1
Этаж
9
Расположение квартиры
не угловая
Окна выходят
На улицу
Совмещенных санузлов
1
О доме
Год постройки
2018
Этажность
10
Материал постройки
Кирпично-монолитный
Материал перекрытий
Монолитные
Отопление
Индивидуальный котел
Грузовых лифтов
1
Парковка
Наземная
Расположение
Россия, Калининград, Флотская улица, 9
Ипотечный калькулятор
Заполните 1 анкету — получите предложения от десятков банков на специальных условиях
Программа ипотеки
Стоимость жилья, ₽
Первый взнос, ₽
Срок кредита
от 5.75%
Ставка
от 50 329 ₽
Платеж в месяц
Расчёт носит информационный характер и не является публичной офертой
Похожие объекты
Предложите свою цену
8 000 000 ₽
170 213 ₽/м²























































































