Продается 4-комн. квартира, 234.9 м²
Россия, Калининград, улица Юрия Гагарина, 15А
234.9 м²
Общая площадь
150 м²
Жилая площадь
36 м²
Площадь кухни
4 из 4
Этаж
Описание
Адрес: Россия, Калининград, улица Юрия Гагарина, 15А.
Описание:
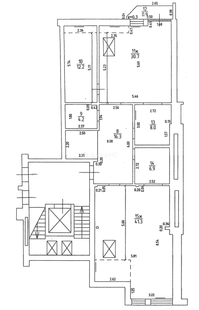
Представляем вашему вниманию просторную четырёхкомнатную квартиру в кирпичном доме 2004 года постройки. Квартира двухуровневая, отличается удачной планировкой и достаточной площадью для комфортной жизни большой семьи. На первом этаже сдан ремонт.
Преимущества:
Расположение: дом находится в развитом районе с отличной инфраструктурой. Рядом школы, детские сады, магазины, аптеки и спортивные клубы. Удобная транспортная доступность позволяет быстро добраться до центра города и основных магистралей.
Площадь и планировка: общая площадь квартиры составляет 234,9 кв. м, из которых 150 кв. м — жилая площадь. Просторные комнаты, изолированы друг от друга, что обеспечивает комфорт и уединение. Кухня площадью 36 кв. м идеально подходит для семейных ужинов и дружеских посиделок.
Инфраструктура: в доме есть подземная парковка и огороженная территория, что обеспечивает безопасность и удобство. В шаговой доступности находятся все необходимые объекты социальной и коммерческой инфраструктуры.
Не упустите возможность стать обладателем этой прекрасной квартиры! 🏠
Свяжитесь с нами прямо сейчас, чтобы узнать больше и записаться на просмотр.
Мы гарантируем безопасную сделку и юридическую поддержку нашим клиентам. Поможем одобрить ипотеку с сниженной ставкой. 💼
Возможен обмен на вашу недвижимость с доплатой!
Ориентиры: ул. Литовский Вал, Московский проспект, ул. 9 Апреля
__________________________________________________
Дарим 300 000 рублей на путешествие!
Покупайте или продавайте недвижимость вместе с агентством "Авеню-Риэлт Владис" и получайте шанс отправиться в путешествие Вашей мечты!
Направление путевки Вы можете определить самостоятельно.
Победитель будет выбран случайным образом в конце декабря.
Подробнее узнавайте у своего агента или в офисах «Авеню-Риэлт Владис».
О квартире
Общая площадь
234.9 м²
Жилая площадь
150 м²
Площадь кухни
36 м²
Площадь комнат
150 м²
Этаж
4
Расположение квартиры
не угловая
Окна выходят
На улицу
Раздельных санузлов
2
Совмещенных санузлов
2
Ремонт
White box
О доме
Год постройки
2004
Этажность
4
Количество подъездов
2
Материал постройки
Кирпичный
Материал перекрытий
Ж/б плиты
Отопление
Индивидуальный котел
Парковка
Подземная
Огороженная территория
Да
Расположение
Россия, Калининград, улица Юрия Гагарина, 15А
Ипотечный калькулятор
Заполните 1 анкету — получите предложения от десятков банков на специальных условиях
Программа ипотеки
Стоимость жилья, ₽
Первый взнос, ₽
Срок кредита
от 5.75%
Ставка
от 210 751 ₽
Платеж в месяц
Расчёт носит информационный характер и не является публичной офертой
Предложите свою цену
33 500 000 ₽
142 614 ₽/м²






































