Продается 2-комн. квартира, 57.8 м²
Россия, Калининград, улица Космонавта Леонова, 81
57.8 м²
Общая площадь
39.5 м²
Жилая площадь
9.3 м²
Площадь кухни
3 из 4
Этаж
Описание
Продаётся квартира ул. Космонавта Леонова, 81 — это не просто жильё, это инвестиция в комфортное будущее.
Кирпичный дом 1955 года постройки отличается своей надёжностью и хорошей звукоизоляцией. Благодаря развитой транспортной инфраструктуре, вы сможете быстро добраться до любой точки города. Близость к основным магистралям и общественным транспортным узлам делает эту квартиру идеальным выбором для тех, кто ценит своё время.
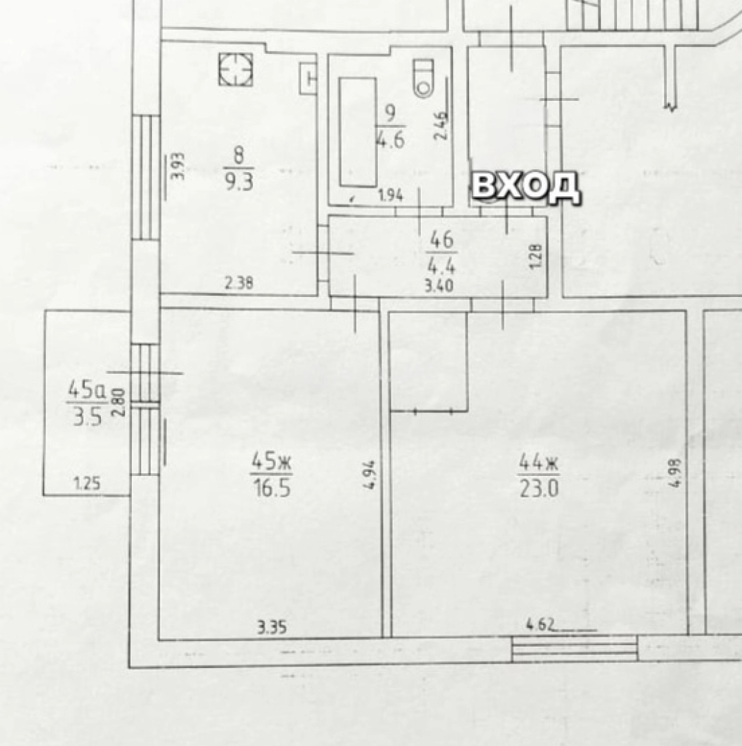
Площадь и планировка:
Общая площадь квартиры составляет 57,8 кв. м, из которых 39,5 кв. м — жилая площадь. Две изолированные комнаты (23 кв. м и 16,5 кв. м) и кухня площадью 9,3 кв. м создают пространство для жизни и отдыха. Высота потолков 2,7 м добавляет ощущение простора. Наличие балкона является дополнительным преимуществом, где можно насладиться видом на улицу.
Квартира с евроремонтом и готова к заселению. Качественные материалы и стильный дизайн создают уютную атмосферу. Совмещённый санузел удобно расположен, что добавляет функциональности планировке.
Район, в котором расположена квартира, отличается развитой инфраструктурой. В шаговой доступности находятся магазины, школы, детские сады и поликлиники. Это делает квартиру идеальным выбором как для семей с детьми, так и для взрослой пары, которые ценят комфорт и безопасность.
Мы гарантируем безопасную сделку и юридическую поддержку нашим клиентам. Поможем одобрить ипотеку с сниженной ставкой.
Звоните прямо сейчас, чтобы узнать больше и записаться на просмотр!
О квартире
Общая площадь
57.8 м²
Жилая площадь
39.5 м²
Площадь кухни
9.3 м²
Площадь комнат
23+16,5 м²
Высота потолков
2.7 м
Этаж
3
Расположение квартиры
не угловая
Окна выходят
На улицу
Совмещенных санузлов
1
Мебель
Да
О доме
Год постройки
1955
Этажность
4
Материал постройки
Кирпичный
Материал перекрытий
Ж/б плиты
Отопление
Центральное
Расположение
Россия, Калининград, улица Космонавта Леонова, 81
Ипотечный калькулятор
Заполните 1 анкету — получите предложения от десятков банков на специальных условиях
Программа ипотеки
Стоимость жилья, ₽
Первый взнос, ₽
Срок кредита
от 5.75%
Ставка
от 50 266 ₽
Платеж в месяц
Расчёт носит информационный характер и не является публичной офертой
Предложите свою цену
7 990 000 ₽
138 235 ₽/м²



































































































































