Продается 1-комн. квартира, 38.8 м²
Россия, Калининград, улица Генерал-фельдмаршала Румянцева, 11
38.8 м²
Общая площадь
16.1 м²
Жилая площадь
11 м²
Площадь кухни
8 из 12
Этаж
Описание
Продается однокомнатная квартира на восьмом этаже двенадцатиэтажного монолитного дома 2024 года постройки по улице Генерал-фельдмаршала Румянцева.
Ориентиры: ул. Сержанта Колоскова, Донского, проспект Мира.
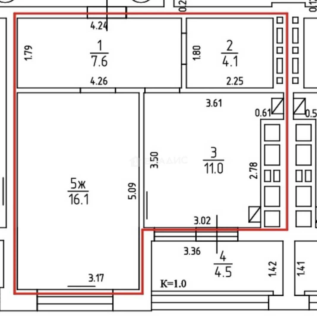
Общая площадь квартиры 38,8 кв.м. Жилая 16,1 кв.м. Просторная кухня 11 кв.м с выходом на застекленную лоджию 4,5 кв.м. Совмещенный санузел 4,1 кв.м. Холл 7,6 кв.м.
Развитая инфраструктура. В шаговой доступности находятся все объекты социальной и культурной значимости. Частные и государственные школы и детские сады. Магазины, остановка общественного транспорта, спортивный клуб с бассейном World Class, Центральный парк Культуры и Отдыха.
Квартира в отделке качественный «серый ключ». Возможность сделать финишную отделку на свой вкус.
Высота потолков 3 метра! Красивый подъезд. Ухоженный двор.
Также имеется парковочное место в подземном паркинге в собственности. Продается отдельно.
Возможен обмен на Вашу недвижимость с доплатой.
Звоните. Покажем в удобное для Вас время.
Мы гарантируем безопасную сделку и юридическую поддержку нашим клиентам.
Дарим 300 000 рублей на путешествие! Покупайте или продавайте недвижимость вместе с агентством "Авеню-Риэлт Владис" и получайте шанс отправиться в путешествие Вашей мечты! Направление путевки Вы можете определить самостоятельно. Победитель будет выбран случайным образом в конце декабря. Подробнее узнавайте у своего агента или в офисах «Авеню-Риэлт Владис».
О квартире
Общая площадь
38.8 м²
Жилая площадь
16.1 м²
Площадь кухни
11 м²
Площадь комнат
16,1 м²
Высота потолков
3 м
Этаж
8
Расположение квартиры
не угловая
Окна выходят
На улицу
Совмещенных санузлов
1
Ремонт
Без отделки
О доме
Год постройки
2024
Этажность
12
Количество подъездов
6
Материал постройки
Кирпичный
Материал перекрытий
Монолитные
Отопление
Индивидуальный котел
Пассажирских лифтов
1
Грузовых лифтов
1
Парковка
Подземная
Огороженная территория
Да
Расположение
Россия, Калининград, улица Генерал-фельдмаршала Румянцева, 11
Ипотечный калькулятор
Заполните 1 анкету — получите предложения от десятков банков на специальных условиях
Программа ипотеки
Стоимость жилья, ₽
Первый взнос, ₽
Срок кредита
от 5.75%
Ставка
от 62 848 ₽
Платеж в месяц
Расчёт носит информационный характер и не является публичной офертой
Предложите свою цену
9 990 000 ₽
257 474 ₽/м²
















