Продается 1-комн. квартира, 35.8 м²
Россия, Калининград, улица Тенистая Аллея, 36
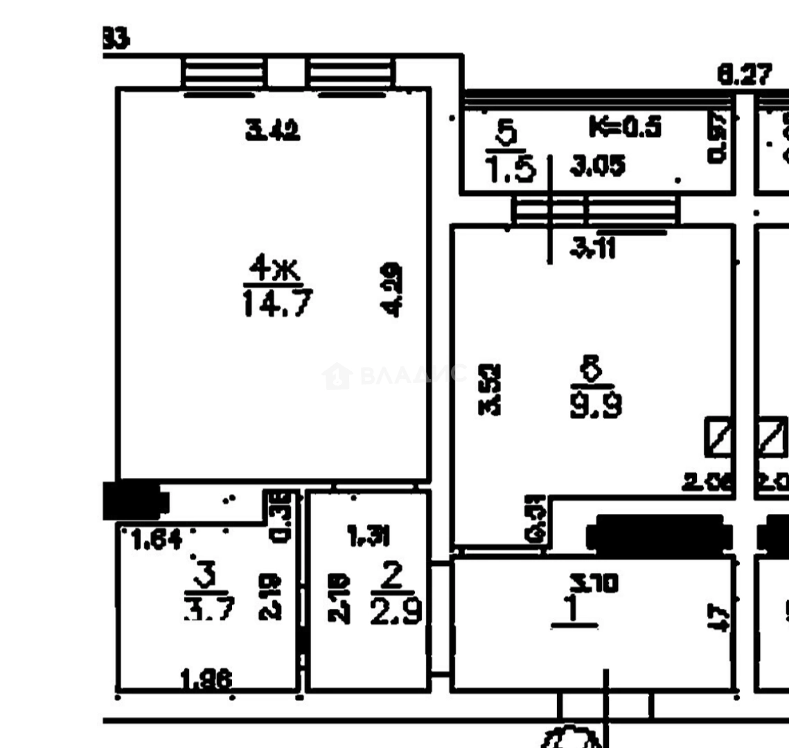
35.8 м²
Общая площадь
14.7 м²
Жилая площадь
9.9 м²
Площадь кухни
6 из 6
Этаж
Описание
Продается однокомнатная квартира на шестом этаже шестиэтажного кирпичного дома 2011 года постройки.
Ориентиры: проспект Победы, ул. Красносельская, лесопарк им. Теодора Кроне.
Общая площадь квартиры 35,8 кв.м. Жилая 14,7 кв.м. Кухня квадратной формы 9,9 кв.м. Совмещенный санузел с ванной.
Автономное отопление. Низкие коммунальные платежи. На все имеются приборы учета.
В квартире сделан хороший ремонт. Можно смело заехать и жить. На полах керамическая плитка и износостойкий ламинат. Стены выровнены и окрашены. Санузел в плитке. Квартира соответствует фотографиям. Укомплектована всей необходимой мебелью и техникой.
Развитая инфраструктура. В непосредственной близости расположены все объекты социальной и культурной значимости. Несколько государственных и частных детских садов. Школы, гимназия, образовательные центры, медицинские центры, поликлиника, остановка общественного транспорта. Удобная транспортная развязка. До берега Балтийского моря 40 минут на автомобиле.
Один взрослый собственник. Более пяти лет в собственности. Подходит под все виды расчетов. Окажем помощь в одобрении ипотеки.
Возможен обмен на Вашу недвижимость с доплатой.
Звоните, показ в удобное для Вас время.
Мы гарантируем безопасную сделку и юридическую поддержку нашим клиентам.
Дарим 300 000 рублей на путешествие! Покупайте или продавайте недвижимость вместе с агентством "Авеню-Риэлт Владис" и получайте шанс отправиться в путешествие Вашей мечты! Направление путевки Вы можете определить самостоятельно. Победитель будет выбран случайным образом в конце декабря. Подробнее узнавайте у своего агента или в офисах «Авеню-Риэлт Владис».
О квартире
Общая площадь
35.8 м²
Жилая площадь
14.7 м²
Площадь кухни
9.9 м²
Площадь комнат
14,7 м²
Высота потолков
2.7 м
Этаж
6
Расположение квартиры
не угловая
Окна выходят
На улицу
Совмещенных санузлов
1
Ремонт
Евро
О доме
Год постройки
2011
Этажность
6
Количество подъездов
1
Материал постройки
Кирпичный
Материал перекрытий
Ж/б плиты
Отопление
Индивидуальный котел
Парковка
Наземная
Расположение
Россия, Калининград, улица Тенистая Аллея, 36
Ипотечный калькулятор
Заполните 1 анкету — получите предложения от десятков банков на специальных условиях
Программа ипотеки
Стоимость жилья, ₽
Первый взнос, ₽
Срок кредита
от 5.75%
Ставка
от 37 055 ₽
Платеж в месяц
Расчёт носит информационный характер и не является публичной офертой
Похожие объекты
Предложите свою цену
5 890 000 ₽
164 525 ₽/м²








































































