Купить дом на улице Еловая в Калининградской области
Россия, Калининградская область, Гурьевский муниципальный округ, посёлок Луговое, Еловая улица, 11
82 м²
Площадь дома
8 сот
Площадь участка
Газобетонный блок
Материал постройки
1
Этажей
Описание
• ВНИМАНИЕ: подходит под ВСЕ виды ипотек (в том числе семейную и IT),есть возможность оформления без первоначального взноса, маткапитал в качестве ПВ. Идеальный вариант под семейную ипотеку.
• Дом из качественных материалов, установлены дорогие стеклопакеты, комплектация «теплый пол», панорамные окна.
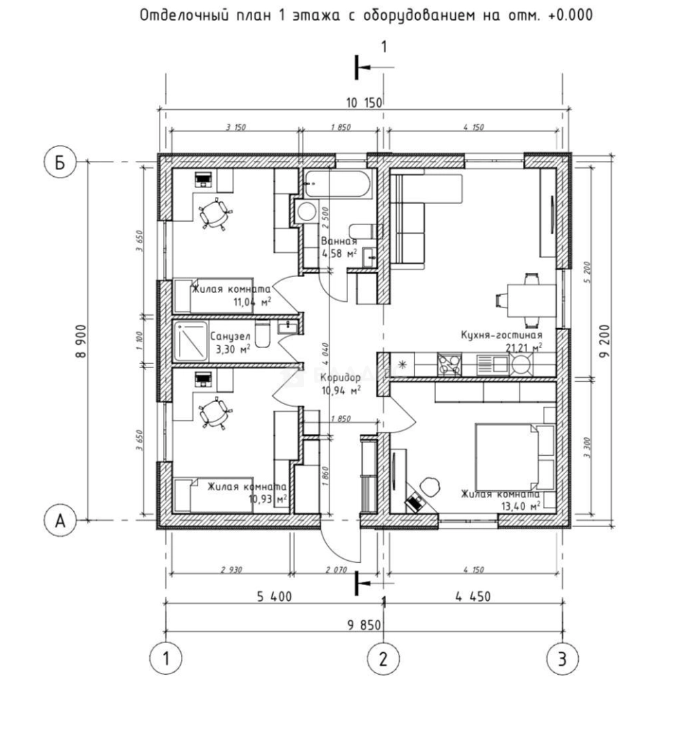
• Планировка:
- кухня-гостиная с панорамным остекленеем и выходом на террасу 21,21 м.кв.;
- 3 комнаты: 13,4+11,1+10,9;
- 2 с\узла: 4,6 + 3,3 кв. м.;
- коридор 11 м.кв. с тамбуром.
• Все коммуникации
• Удобные подъездные пути.
• Возможность ремонта от застройщика по себестоимости.
• Бесплатная помощь в оформление ипотеки, полная юридическая поддержка под ключ.
• Звоните, организуем показ в любое удобное для Вас время!
О доме
Год постройки
2025
Этажей в доме
1
Общая площадь
82 м²
Жилая площадь
35.4 м²
Площадь кухни
21.21 м²
Площадь комнат
13,4+11,1+10,9 м²
Материал постройки
Газобетонный блок
Материал перекрытий
Ж/б плиты
Материал кровли
Металлочерепица
Раздельных санузлов
2
Об участке
Площадь участка
8 сот.
Статус участка
Индивидуальное жилищное строительство
Электричество
Есть
Газ
Есть
Водоснабжение
Есть
Канализация
Есть
Без благоустройства участка
Есть
Подъезд к участку
Асфальт
Расположение
Россия, Калининградская область, Гурьевский муниципальный округ, посёлок Луговое, Еловая улица, 11
Ипотечный калькулятор
Заполните 1 анкету — получите предложения от десятков банков на специальных условиях
Программа ипотеки
Стоимость жилья, ₽
Первый взнос, ₽
Срок кредита
от 5.75%
Ставка
от 37 118 ₽
Платеж в месяц
Расчёт носит информационный характер и не является публичной офертой
Предложите свою цену
5 900 000 ₽
71 951 ₽/м²




























