Купить дом в Калининградской области
Россия, Калининградская область, Зеленоградский муниципальный округ, посёлок Холмогоровка
82 м²
Площадь дома
5 сот
Площадь участка
Газобетонный блок
Материал постройки
1
Этажей
Описание
Дом подходит под ВСЕ виды ипотек (в том числе СЕМЕЙНОЙ и IT),оформим быстро, поможем с одобрением льготных ставок, есть возможность без первоначального взноса. Первым покупателям дома продаются фактически по себестоимости (первая очередь), на следующие дома цена будет неизменно расти в геометрической прогрессии.
Все выполнено из качественных материалов, дорогие стеклопакеты KBE, панорамные окна, комплектация «теплый пол», материалы из газобетонных энергоэффективных блоков, фасад и крыша утеплены, все инженерные сети подведены. По дополнительным вопросами звоните. Все расскажем и покажем, скинем видео.
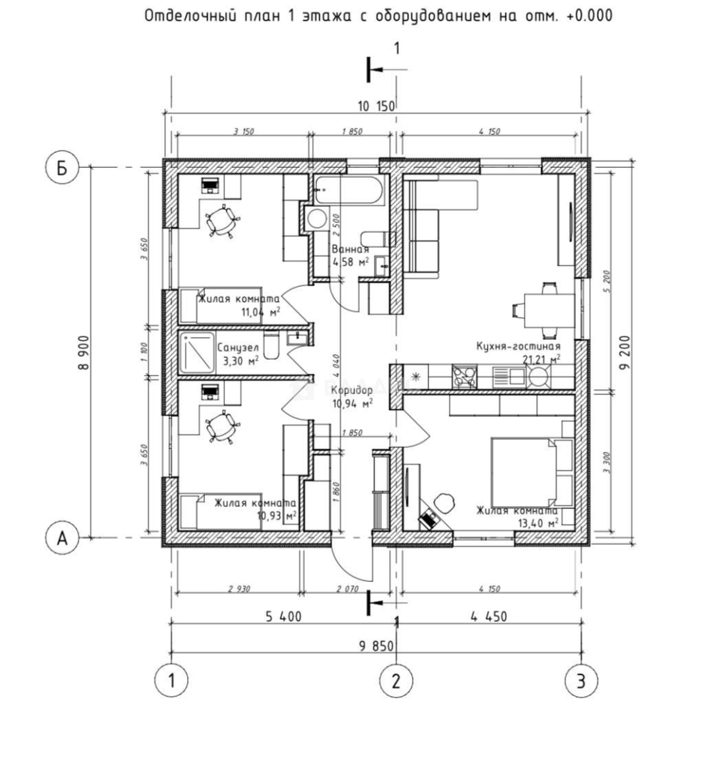
Характеристика дома:
- площадь 82 м² (плюс зона барбекю);
- участок 5 соток (возможно увеличение);
- кухня-гостиная с панорамным остекленеем и выходом на террасу 21,21 м.кв.;
- 3 комнаты: 13,4+11,1+10,9;
- 2 с\узла: 4,6 + 33 кв. м.;
- коридор 11 кв. м. с тамбуром.
Живописная местность, до Калининграда всего 3 минуты, до побережья Балтийского моря 25 минут (как Зеленоградск, так и Светлогорск), рядом остановка общественного транспорта, озеро. Поселок интенсивно развивается, осенью начнет работать супермаркет «СПАР» площадью 8000 кв.м., в 2027 году будет введена в эксплуатацию новая современная школа с детским садиком.
Бесплатная помощь в оформление ипотеки, опытная команда ипотечных брокеров, поможем оформить на льготных условиях, полная юридическая поддержка под ключ.
Звоните, организуем показ в любое удобное для Вас время!
ЦЕНА в ипотеку, за наличный расчет большие скидки, реальному покупателю торг.
О доме
Год постройки
2025
Этажей в доме
1
Общая площадь
82 м²
Жилая площадь
35.4 м²
Площадь кухни
21.21 м²
Площадь комнат
13,4+11,1+10,9 м²
Материал постройки
Газобетонный блок
Материал перекрытий
Ж/б плиты
Материал кровли
Металлочерепица
Раздельных санузлов
2
Об участке
Площадь участка
5 сот.
Статус участка
Индивидуальное жилищное строительство
Электричество
Есть
Газ
Есть
Водоснабжение
Есть
Канализация
Есть
Без благоустройства участка
Есть
Подъезд к участку
Грунтовка
Расположение
Россия, Калининградская область, Зеленоградский муниципальный округ, посёлок Холмогоровка
Ипотечный калькулятор
Заполните 1 анкету — получите предложения от десятков банков на специальных условиях
Программа ипотеки
Стоимость жилья, ₽
Первый взнос, ₽
Срок кредита
от 5.75%
Ставка
от 40 578 ₽
Платеж в месяц
Расчёт носит информационный характер и не является публичной офертой
Предложите свою цену
6 450 000 ₽
78 659 ₽/м²








